88 Lexington St, Newton MA  02466-1346 exterior

88 Lexington St Newton, MA 02466 / 1346

(UPDATED: 07/03/2025)
Property Report

Information about property on 88 Lexington St, Newton MA, 02466-1346. Find out owner contacts, building history, price, neighborhood at Homemetry Address Directory.

Units

Property details of units in this apartment building

#89

  • 650 sqft
  • 1 bed
  • 1 bath

Property Details

This property has approximately twenty-two hundred square feet of effective area and sits on 0,29 acres.

Facts

  • Built in 1938
  • Property use Single Family
  • Lot size 12,600 sqft
  • Effective area 2,175 sqft
  • Gross building area 2,706 sqft
  • Building type Residential
  • Rooms 6
  • Bedrooms 3
  • Bathrooms 1
  • Stories 2
  • Exterior condition Average
  • Trim None
  • Foundation type Concrete
  • Roof material Asphalt Shingl
  • Fuel type Oil
  • Frontage 70 feet
  • Basement area 792 sqft
  • Finished basement area 261 sqft
  • Enclosed porch area 70 sqft
  • Attached garage area 260 sqft
  • Heating & Cooling
  • Heat type Steam
  • Exterior Home Features
  • Exterior walls Wood Shingle
  • Roof type Hip

Features

  • Kitchen quality: Below Average

Householders and Tenants for 88 Lexington St, Newton MA

Possible residents contact details

Person Name Phone Number Additional Info
Audrey A Moran
Florence D Halloran
617-332-****
Residential status:
Homeowner
Job:
Retired
Kenneth J Halloran Age: 68
617-332-****
Paul F Halloran
617-332-****
Residential status:
Homeowner
Job:
Production Occupations

Units - Who lives at 88 Lexington St, Newton MA

#891 bed, 1 bath, 650 sqft 02466-1346
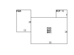
88 Lexington St, Newton MA  02466-1346 plot plan 88 Lexington St, Newton MA  02466-1346 floor plan 88 Lexington St, Newton MA  02466-1346 aerial view

Cost estimate history

YearAssessment
2016 $529,700
2015 $495,000
2014 $471,800
2013 $471,800
2012 $471,800
2011 $471,100
2010 $480,700
2009 $490,500
2008 $490,500
2007 $505,200
2006$490,500
2005$467,100
2004$431,000
2003$384,800
2002$384,800
2001$311,100
2000$284,100
1999$258,500
1998$231,100
1997$231,100
1996$220,100
1995$198,000
1994$198,000
1993$198,000
1992$217,800

Where is 88 Lexington St, Newton MA located on map?

Market Activities

To date, we have no information about market activities in 2025
Sep 2024 Sold
88 Lexington St
Price history :
  • Single Family
  • 6,453 sqft
  • 6 beds
  • 6 baths
Jun 2024 Sold
88 Lexington St
Price history :
  • Single Family
  • 6,453 sqft
  • 6 beds
  • 6 baths
May 2024 Sold
88 Lexington St
Price history :
  • Single Family
  • 6,453 sqft
  • 6 beds
  • 6 baths
Mar 2023 Sold
88 Lexington St
Price history :
  • Single Family
  • 6,453 sqft
  • 6 beds
  • 6 baths
Oct 2017 Recent Rent
88 Lexington St #89
Price history :
  • 650 sqft
  • 1 bed
  • 1 bath

View more

Building Permits

To date, we have no information about building permits in 2025
Oct 19, 2010
Description: Strip existing shingles and install new shingles
  • Valuation: $700,200
  • Fee: $130.24 paid to City of Newton, Massachusetts
  • Parcel #: 44035 0056
  • Permit #: 10100433

Lexington St Fire Incident History

To date, we have no information about fire incidents in 2025
15 May 2018 Grass fire
Property Use —
Residential street, road or residential driveway
Area of Origin —
Outside area, other
First Ignition —
Chips, including wood chips
Heat Source —
Cigarette
04 Jul 2016 Brush, or brush and grass mixture fire
Property Use —
Open land or field
Area of Origin —
Outside area, other
First Ignition —
Heavy vegetation - not crop, including trees
Heat Source —
Explosive, fireworks, other
29 Apr 2013 Building fires
Property Use —
1 or 2 family dwelling
Area of Origin —
Cooking area, kitchen
First Ignition —
Cooking materials, including edible materials
Heat Source —
Heat from direct flame, convection currents
01 Apr 2013 Building fires
Property Use —
Multifamily dwellings
Area of Origin —
Cooking area, kitchen
First Ignition —
Item First Ignited, Other
Heat Source —
Heat from powered equipment, other

View more

Lexington St Incidents registered in FEMA
(Federal Emergency Management Agency)

To date, we have no information about incidents registered in FEMA in 2025
11 Oct 2014 Vehicle accident, general cleanup
Property Use —
Street, other
11 Jul 2014 Cooking fire, confined to container
Property Use —
Multifamily dwellings
29 Jun 2014 Gas leak (natural gas or LPG)
Property Use —
Business office
21 Nov 2013 Vehicle accident, general cleanup
Property Use —
Street, other

View more

Properties Nearby

Street AddressResidens/Landlords
6 Lexington St, Newton, MA 02465-1030
Two Family
  • 5 beds
  • 2 baths
  • 4,514 sqft
  • Built in 1862
Roslyn L Mahaney, Roslyn I Mahaney
11 Lexington St, Newton, MA 02465-1029
Parking Lots
  • Lot: 15,879 sqft
76 Lexington St, Newton, MA 02466-1346
Single Family
  • 4 beds
  • 2 baths
  • 2,946 sqft
  • Built in 1900
Orhan Beker, Frederick S Camerato
77 Lexington St, Newton, MA 02466-1345
Single Family
  • 3 beds
  • 1.5 baths
  • 2,997 sqft
  • Built in 1890
Richard J Perruzzi, Dolores A Perruzzi
82 Lexington St, Newton, MA 02466-1346
Single Family
  • 3 beds
  • 2 baths
  • 2,856 sqft
  • Built in 1953
Lien Alpert, John E Buhl
83 Lexington St, Newton, MA 02466-1345
Two Family
  • 4 beds
  • 2 baths
  • 3,004 sqft
  • Built in 1951
83 LEXINGTON STREET REALTY TRUST, Paul A Perruzzi
John L Matthews, Frank R Gorgone
92 Lexington St, Newton, MA 02466-1346
Single Family
  • 4 beds
  • 4 baths
  • 4,853 sqft
  • Built in 1890
Regina Farnese, Robert J Farnese
 

FAQ about the house at 88 Lexington St, Newton, MA


NOTICE: You may not use RadioAwards or the information it provides to make decisions about employment, credit, housing or any other purpose that would require Fair Credit Reporting Act (FCRA) compliance. RadioAwards is not a Consumer Reporting Agency (CRA) as defined by the FCRA and does not provide consumer reports.