79 Maplewood Ave, Newton MA  02459-2527 exterior

79 Maplewood Ave Newton, MA 02459 / 2527

Residence for Single Family

(UPDATED: 07/26/2025)
  • 4 Beds
  • 1 Baths
  • 3.618 square feet
Property Report

Information about property on 79 Maplewood Ave, Newton MA, 02459-2527. Find out owner contacts, building history, price, neighborhood at Homemetry Address Directory.

Property Details

This property with near twenty-seven hundred square feet of effective area on 0,21 acres was built in 1925.

Facts

  • Built in 1925
  • Property use Single Family
  • Lot size 9,200 sqft
  • Effective area 2,720 sqft
  • Gross building area 3,618 sqft
  • Building type Residential
  • Rooms 8
  • Bedrooms 4
  • Bathrooms 1
  • Stories 2
  • Exterior condition Average
  • Trim None
  • Foundation type Concrete
  • Roof material Asphalt Shingl
  • Fuel type Gas
  • Air conditioning Central
  • Frontage 105 feet
  • Basement area 1,197 sqft
  • Finished basement area 299 sqft
  • Enclosed porch area 162 sqft
  • Detached garage area 264 sqft
  • Heating & Cooling
  • Heat type Steam
  • Exterior Home Features
  • Exterior walls Brick Veneer
  • Roof type Gable

Householders and Tenants for 79 Maplewood Ave, Newton MA

Possible residents contact details

Person Name Phone Number Additional Info
Bart W Yee
Ellie Y Lee Age: 91
617-928-****
Feng Hong
Job:
Administration/Managerial
George Kostopulos
Ming F K Lee
Pui Y Yee
Ruth Rosenberg
Sandy Lee
Steven C Lee
617-965-****

Businesses

Organization Phone Number Additional Info
Michael Montoya
617-928-****
Organization:
Salamander Films
Title:
Executive

Possible Businesses

Organization Phone Number Additional Info
Salamander Films
617-928-****
Industry:
Ret Shoes
SIC:
4225 - General Warehousing and Storage
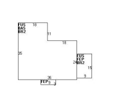
79 Maplewood Ave, Newton MA  02459-2527 plot plan 79 Maplewood Ave, Newton MA  02459-2527 floor plan 79 Maplewood Ave, Newton MA  02459-2527 aerial view

Purchase History

DateEventPriceSourceAgents
07/02/1991 Sold $206,000 Public records

Cost estimate history

YearAssessment
2016 $752,700
2015 $703,500
2014 $672,800
2013 $672,800
2012 $672,800
2011 $672,100
2010 $685,800
2009 $699,800
2008 $699,800
2007 $721,200
2006$700,200
2005$666,900
2004$626,200
2003$559,100
2002$559,100
2001$462,000
2000$421,900
1999$383,900
1998$331,200
1997$315,400
1996$294,100
1995$263,900
1994$251,300
1993$251,300
1992$273,800

Where is 79 Maplewood Ave, Newton MA located on map?

Market Activities

To date, we have no information about market activities in 2025
Apr 2023 Sold
79 Maplewood Ave
Price history :
  • Single Family
  • 2,859 sqft
  • 4 beds
  • 3 baths

View more

Maplewood Ave Incidents registered in FEMA
(Federal Emergency Management Agency)

To date, we have no information about incidents registered in FEMA in 2025
09 May 2010 Chemical spill or leak
Property Use —
1 or 2 family dwelling

Properties Nearby

Street AddressResidens/Landlords
Elizabeth My Wu
 

FAQ about the house at 79 Maplewood Ave, Newton, MA


NOTICE: You may not use RadioAwards or the information it provides to make decisions about employment, credit, housing or any other purpose that would require Fair Credit Reporting Act (FCRA) compliance. RadioAwards is not a Consumer Reporting Agency (CRA) as defined by the FCRA and does not provide consumer reports.