47 Grace Rd, Newton MA  02459-3450 exterior

47 Grace Rd Newton, MA 02459 / 3450

Residence for Single Family

(UPDATED: 08/26/2025)
  • 4 Beds
  • 3 Baths
  • 5.257 square feet
Property Report

Information about property on 47 Grace Rd, Newton MA, 02459-3450. Find out owner contacts, building history, price, neighborhood at Homemetry Address Directory.

Property Details

A residence at 47 Grace Road, Newton, MA.

Facts

  • Built in 1965
  • Property use Single Family
  • Lot size 15,293 sqft
  • Effective area 5,257 sqft
  • Building type Residential
  • Rooms 10
  • Bedrooms 4
  • Bathrooms 3
  • Exterior condition Average
  • Trim Half Wall
  • Foundation type Concrete
  • Roof material Asphalt Shingl
  • Fuel type Oil
  • Air conditioning Central
  • Frontage 97 feet
  • Basement area 2,418 sqft
  • Finished basement area 1,812 sqft
  • Porch area 20 sqft
  • Deck area 295 sqft
  • Basement garages 2
  • Heating & Cooling
  • Heat type Forced Air-Duc
  • Exterior Home Features
  • Exterior walls Wood Shingle
  • Roof type Gable

Features

  • Kitchen quality: Above Average
  • Interior condition: Good

Householders and Tenants for 47 Grace Rd, Newton MA

Possible residents contact details

Person Name Phone Number Additional Info
C Feuerman
617-964-****
Cary N Feuerman Age: 68
617-964-****
Emily Feuerman Age: 38
617-964-****
Residential status:
Homeowner
LAURA A FEUERMAN TRUST
Laura A Feuerman Age: 66
617-964-****
Matthew Feuerman Age: 35
617-964-****
Residential status:
Homeowner
Peter A Kulin
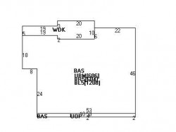
47 Grace Rd, Newton MA  02459-3450 plot plan 47 Grace Rd, Newton MA  02459-3450 floor plan 47 Grace Rd, Newton MA  02459-3450 aerial view

Purchase History

DateEventPriceSourceAgents
03/15/1990 Sold $389,750 Public records

Cost estimate history

YearAssessment
2016 $989,400
2015 $924,700
2014 $884,200
2013 $884,200
2012 $884,200
2011 $885,500
2010 $903,600
2009 $922,000
2008 $922,000
2007 $940,300
2006$912,900
2005$869,400
2004$830,100
2003$741,200
2002$741,200
2001$602,500
2000$495,000
1999$450,400
1998$440,800
1997$425,900
1996$405,600
1995$366,200
1994$348,800
1993$348,800
1992$350,900

Where is 47 Grace Rd, Newton MA located on map?

Properties Nearby

Street AddressResidens/Landlords
6 Grace Rd, Newton, MA 02459-3426
Single Family
  • 4 beds
  • 3.5 baths
  • 5,929 sqft
  • Built in 1965
Jonathan M Teich, Nancy D Teich
7 Grace Rd, Newton, MA 02459-3425
Single Family
  • 3 beds
  • 2.5 baths
  • 2,376 sqft
  • Built in 1958
Sayako Honjo, Sanjeev Mohanti
 

FAQ about the house at 47 Grace Rd, Newton, MA


NOTICE: You may not use RadioAwards or the information it provides to make decisions about employment, credit, housing or any other purpose that would require Fair Credit Reporting Act (FCRA) compliance. RadioAwards is not a Consumer Reporting Agency (CRA) as defined by the FCRA and does not provide consumer reports.