76 Side Pkwy, Newton MA  02458-1816 exterior

76 Side Pkwy Newton, MA 02458 / 1816

(UPDATED: 08/12/2025)
Property Report

Information about property on 76 Side Pkwy, Newton MA, 02458-1816. Find out owner contacts, building history, price, neighborhood at Homemetry Address Directory.

Units

Property details of units in this apartment building

#78

  • 7,741 sqft
  • 4 beds
  • 2 baths
Multi-Family Home

Property Details

This is a residence, which is situated at 76 Side Pkwy, Newton, MA.

Facts

  • Built in 1915
  • Property use Two Family
  • Lot size 7,741 sqft
  • Effective area 3,736 sqft
  • Building type Residential
  • Rooms 10
  • Bedrooms 4
  • Stories 2
  • Exterior condition Fair
  • Trim None
  • Foundation type Concrete
  • Roof material Asphalt Shingl
  • Fuel type Oil
  • Frontage 124 feet
  • Basement area 1,422 sqft
  • Shed area 43 sqft
  • Porch area 42 sqft
  • Basement garages 2
  • Heating & Cooling
  • Heat type Hot Water
  • Exterior Home Features
  • Exterior walls Wood Shingle
  • Roof type Hip

Features

  • Kitchen quality: Average
  • Interior condition: Good

Householders and Tenants for 76 Side Pkwy, Newton MA

Possible residents contact details

Person Name Phone Number Additional Info
Ariana S Mufson Age: 44
Eliza L Michelsen Age: 58
617-630-****
Elizabet Michelsen Age: 58
617-763-****
Residential status:
Homeowner
Elizabeth L Michelsen Age: 58
617-630-****
Residential status:
Renter
Job:
Construction and Extraction Occupations
Gail Maderis
617-332-****
K Kachadurian

Units - Who lives at 76 Side Pkwy, Newton MA

#78Multi-Family Home, 4 beds, 2 baths, 7,741 sqft 02458-1816
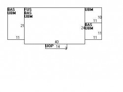
76 Side Pkwy, Newton MA  02458-1816 plot plan 76 Side Pkwy, Newton MA  02458-1816 floor plan 76 Side Pkwy, Newton MA  02458-1816 aerial view

Cost estimate history

YearAssessment
2016 $706,400
2015 $660,200
2014 $627,900
2013 $627,900
2012 $627,900
2011 $633,700
2010 $646,600
2009 $680,600
2008 $680,600
2007 $731,600
2006$710,300
2005$689,600
2004$595,800
2003$522,600
2002$522,600
2001$437,300
2000$399,400
1999$363,400
1998$280,100
1997$260,600
1996$248,200
1995$231,900
1994$244,100
1993$244,100
1992$254,400

Where is 76 Side Pkwy, Newton MA located on map?

Side Pkwy Fire Incident History

To date, we have no information about fire incidents in 2025
04 Jun 2004 Building fires
Property Use —
1 or 2 family dwelling
Area of Origin —
Bedroom - < 5 persons; included are jail or prison
First Ignition —
Mattress, pillow
Heat Source —
Cigarette

76 Side Pkwy incidents registered in FEMA
(Federal Emergency Management Agency)

To date, we have no information about incidents registered in FEMA in 2025
27 Jul 2010 Gasoline or other flammable liquid spill
Property Use —
Residential street, road or residential driveway

Side Pkwy Incidents registered in FEMA
(Federal Emergency Management Agency)

To date, we have no information about incidents registered in FEMA in 2025
24 May 2011 Carbon monoxide incident
Property Use —
1 or 2 family dwelling
27 Jul 2010 Gasoline or other flammable liquid spill
Property Use —
Residential street, road or residential driveway
24 Jun 2010 Gas leak (natural gas or LPG)
Property Use —
1 or 2 family dwelling
15 Apr 2010 Arcing, shorted electrical equipment
Property Use —
1 or 2 family dwelling

View more

Properties Nearby

Street Address Residens/Landlords
 

FAQ about the house at 76 Side Pkwy, Newton, MA


NOTICE: You may not use RadioAwards or the information it provides to make decisions about employment, credit, housing or any other purpose that would require Fair Credit Reporting Act (FCRA) compliance. RadioAwards is not a Consumer Reporting Agency (CRA) as defined by the FCRA and does not provide consumer reports.