56 Parsons St, Newton MA  02465-2136 exterior

56 Parsons St Newton, MA 02465 / 2136

(UPDATED: 09/11/2025)
Property Report

Information about property on 56 Parsons St, Newton MA, 02465-2136. Find out owner contacts, building history, price, neighborhood at Homemetry Address Directory.

Property Details

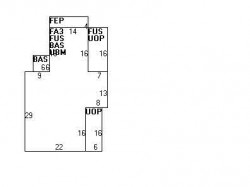
Erected in 1880, this property has approximately thirty-eight hundred square feet of effective area.

Facts

  • Built in 1880
  • Property use Two Family
  • Lot size 9,100 sqft
  • Effective area 3,793 sqft
  • Gross building area 4,276 sqft
  • Building type Residential
  • Rooms 10
  • Bedrooms 6
  • Stories 2
  • Exterior condition Average
  • Trim None
  • Foundation type Brick/Fldstone
  • Roof material Asphalt Shingl
  • Fuel type Gas
  • Frontage 70 feet
  • Finished attic area 483 sqft
  • Basement area 966 sqft
  • Porch area 208 sqft
  • Enclosed porch area 56 sqft
  • Swimming pool AVG INGRND
  • Detached garage area 702 sqft
  • Heating & Cooling
  • Heat type Steam
  • Exterior Home Features
  • Exterior walls Vinyl Siding
  • Roof type Gambrel

Features

  • Kitchen quality: Above Average

Householders and Tenants for 56 Parsons St, Newton MA

Possible residents contact details

Person Name Phone Number Additional Info
BERUBE AMABLE L E EST
Dorothy E Cusack Age: 100 Apt # B
617-244-****
Residential status:
Renter
Job:
Food Preparation and Serving Related Occupations
Fernando F Aleman Age: 76
617-965-****
Residential status:
Homeowner
Job:
Service Occupations
Fred E Aleman Age: 76
617-965-****
Henry F Berube
Judith E Aleman Age: 76
617-965-****
Residential status:
Homeowner
Job:
Service Occupations
Kerri A Aleman Age: 52
617-965-****
Lorraine M Berube
Patricia A Cusack Age: 62
561-379-****
Residential status:
Homeowner
Job:
Educator
Peter F Harrington
William V Cusack Apt # 1
617-244-****
Wm V Cusack Apt # 1
617-244-****

Units - Who lives at 56 Parsons St, Newton MA

#1William V Cusack 02465-2136
#BDorothy E Cusack 02465-2136
56 Parsons St, Newton MA  02465-2136 plot plan 56 Parsons St, Newton MA  02465-2136 floor plan 56 Parsons St, Newton MA  02465-2136 aerial view

Cost estimate history

YearAssessment
2016 $607,300
2015 $567,600
2014 $545,500
2013 $526,400
2012 $526,400
2011 $532,400
2010 $543,200
2009 $571,800
2008 $571,800
2007 $558,000
2006$541,700
2005$525,900
2004$441,800
2003$387,500
2002$387,500
2001$344,800
2000$314,900
1999$286,500
1998$259,800
1997$246,300
1996$234,600
1995$201,400
1994$218,900
1993$218,900
1992$230,300

Where is 56 Parsons St, Newton MA located on map?

Properties Nearby

Street AddressResidens/Landlords
16 Parsons St, Newton, MA 02465-2136
Two Family
  • 6 beds
  • 4,536 sqft
  • Built in 1950
Laura Bartholomew, Bee Lin Cheang
37 Parsons St, Newton, MA 02465-2135
Two Family
  • 2 beds
  • 4,638 sqft
  • Built in 1880
Alisa Anderson, Bobbi J Bell
 

FAQ about the house at 56 Parsons St, Newton, MA


NOTICE: You may not use RadioAwards or the information it provides to make decisions about employment, credit, housing or any other purpose that would require Fair Credit Reporting Act (FCRA) compliance. RadioAwards is not a Consumer Reporting Agency (CRA) as defined by the FCRA and does not provide consumer reports.