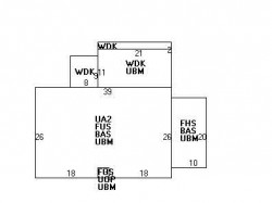
Purchase History
| Date | Event | Price | Source | Agents |
|---|---|---|---|---|
| 04/01/2003 | Sold | $730,000 | Public records |
Cost estimate history
| Year | Assessment | ||
|---|---|---|---|
| 2016 | $869,700 | ||
| 2015 | $812,800 | ||
| 2014 | $780,200 | ||
| 2013 | $780,200 | ||
| 2012 | $780,200 | ||
| 2011 | $768,600 | ||
| 2010 | $784,300 | ||
| 2009 | $863,000 | ||
| 2008 | $863,000 | ||
| 2007 | $861,300 | ||
| 2006 | $747,000 | ||
| 2005 | $709,100 | ||
| 2004 | $660,900 | ||
| 2003 | $590,100 | ||
| 2002 | $590,100 | ||
| 2001 | $487,400 | ||
| 2000 | $445,100 | ||
| 1999 | $405,000 | ||
| 1998 | $355,600 | ||
| 1997 | $355,600 | ||
| 1996 | $338,700 | ||
| 1995 | $312,600 | ||
| 1994 | $297,700 | ||
| 1993 | $297,700 | ||
| 1992 | $318,500 |
48 Kingston Rd Fire Incident History
To date, we have no information about fire incidents in 2025
13 Nov 2008
Building fires
Property Use —
1 or 2 family dwelling
Area of Origin —
Bathroom, checkroom, lavatory, locker room
First Ignition —
Soft goods, wearing apparel, other
Heat Source —
Heat source: other
11 Sep 2008
Building fires
Property Use —
1 or 2 family dwelling
Area of Origin —
Office
First Ignition —
Floor covering or rug/carpet/mat
Heat Source —
Lightning
Kingston Rd Fire Incident History
To date, we have no information about fire incidents in 2025
13 Nov 2008
Building fires
Property Use —
1 or 2 family dwelling
Area of Origin —
Bathroom, checkroom, lavatory, locker room
First Ignition —
Soft goods, wearing apparel, other
Heat Source —
Heat source: other
11 Sep 2008
Building fires
Property Use —
1 or 2 family dwelling
Area of Origin —
Office
First Ignition —
Floor covering or rug/carpet/mat
Heat Source —
Lightning
Properties Nearby
| Street Address | Residens/Landlords | |
|---|---|---|
| Alan J Nogee |


