46 Aberdeen St, Newton MA  02461-1802 exterior

46 Aberdeen St Newton, MA 02461 / 1802

Residence for Single Family

(UPDATED: 09/02/2025)
  • 3 Beds
  • 1 Baths
  • 2.114 square feet
Property Report

Information about property on 46 Aberdeen St, Newton MA, 02461-1802. Find out owner contacts, building history, price, neighborhood at Homemetry Address Directory.

Property Details

Built in the twenties, this property has approximately twenty-one hundred square feet of effective area and sits on 0,09 acres.

Facts

  • Built in 1925
  • Property use Single Family
  • Lot size 4,095 sqft
  • Effective area 2,114 sqft
  • Building type Residential
  • Rooms 7
  • Bedrooms 3
  • Bathrooms 1
  • Stories 2
  • Exterior condition Average
  • Trim None
  • Foundation type Concrete
  • Roof material Asphalt Shingl
  • Fuel type Oil
  • Frontage 45 feet
  • Basement area 648 sqft
  • Shed area 42 sqft
  • Enclosed porch area 170 sqft
  • Heating & Cooling
  • Heat type Hot Wtr Radiat
  • Exterior Home Features
  • Exterior walls Vinyl Siding
  • Roof type Hip

Features

  • Kitchen quality: Above Average
  • Bath quality: Below Average

Householders and Tenants for 46 Aberdeen St, Newton MA

Possible residents contact details

Person Name Phone Number Additional Info
Arina S Vikdorchik Age: 51
617-965-****
Elizabeth R Mullen Age: 101
PISHCHANKER PESYA
R Vikdorchik
617-965-****
Rimma L Vikdorchik Age: 77
617-965-****
Robert G Mullen
Sergey L Vikdorchik Age: 77
617-965-****
Residential status:
Homeowner
Job:
Professional/Technical
VIKDORCHIK FAMILY TRUST
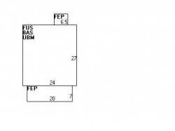
46 Aberdeen St, Newton MA  02461-1802 plot plan 46 Aberdeen St, Newton MA  02461-1802 floor plan 46 Aberdeen St, Newton MA  02461-1802 aerial view

Cost estimate history

YearAssessment
2016 $484,600
2015 $452,900
2014 $430,600
2013 $430,600
2012 $430,600
2011 $423,900
2010 $432,600
2009 $441,400
2008 $441,400
2007 $460,400
2006$447,000
2005$425,700
2004$381,700
2003$340,800
2002$327,700
2001$263,900
2000$241,000
1999$219,300
1998$207,400
1997$202,400
1996$192,800
1995$180,700
1994$180,700
1993$180,700
1992$193,800

Where is 46 Aberdeen St, Newton MA located on map?

Properties Nearby

Street AddressResidens/Landlords
 

FAQ about the house at 46 Aberdeen St, Newton, MA


NOTICE: You may not use RadioAwards or the information it provides to make decisions about employment, credit, housing or any other purpose that would require Fair Credit Reporting Act (FCRA) compliance. RadioAwards is not a Consumer Reporting Agency (CRA) as defined by the FCRA and does not provide consumer reports.