29 Aberdeen St, Newton MA  02461-1801 exterior

29 Aberdeen St Newton, MA 02461 / 1801

Residence for Single Family

(UPDATED: 09/11/2025)
  • 3 Beds
  • 3 Baths
  • 4.087 square feet
Property Report

Information about property on 29 Aberdeen St, Newton MA, 02461-1801. Find out owner contacts, building history, price, neighborhood at Homemetry Address Directory.

Property Details

As is shown in our records this property is placed at 29 Aberdeen Street, Newton, MA.

Facts

  • Built in 1950
  • Property use Single Family
  • Lot size 4,481 sqft
  • Effective area 3,639 sqft
  • Gross building area 4,087 sqft
  • Building type Residential
  • Rooms 8
  • Bedrooms 3
  • Bathrooms 2
  • Stories 2,5
  • Exterior condition Good
  • Trim None
  • Foundation type Concrete
  • Roof material Asphalt Shingl
  • Fuel type Gas
  • Air conditioning Central
  • Frontage 50 feet
  • Basement area 1,065 sqft
  • Shed area 80 sqft
  • Heating & Cooling
  • Heat type Forced Air-Duc
  • Exterior Home Features
  • Exterior walls Vinyl Siding
  • Roof type Gable

Features

  • Kitchen quality: Above Average

Householders and Tenants for 29 Aberdeen St, Newton MA

Possible residents contact details

Person Name Phone Number Additional Info
Alexander Lee Age: 55
617-945-****
Andrew White
617-784-****
Residential status:
Renter
Job:
Service Occupations
Claire Regan
Residential status:
Homeowner
Job:
Sales Occupations
Jeanne M Learned
Jeanne W Santoro
Jennifer H Lee Age: 53
Residential status:
Homeowner
Job:
Medical Professional
Joseph R Learned Age: 71
617-527-****
Kristin M Learned Age: 44
617-527-****
M Hasset
617-332-****
Michael J Hassett
Residential status:
Renter
Job:
Private Household Service Occupations
Paul Regan Age: 96
617-332-****
Robert Regan Age: 86
617-332-****
Sherry A Bergonzi
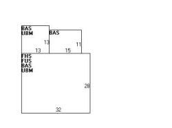
29 Aberdeen St, Newton MA  02461-1801 plot plan 29 Aberdeen St, Newton MA  02461-1801 floor plan 29 Aberdeen St, Newton MA  02461-1801 aerial view

Purchase History

DateEventPriceSourceAgents
06/27/2008 Sold $800,000 Public records
11/23/1999 Sold $230,000 Public records

Cost estimate history

YearAssessment
2016 $861,900
2015 $805,500
2014 $758,000
2013 $758,000
2012 $758,000
2011 $743,800
2010 $759,000
2009 $737,500
2008 $737,500
2007 $510,000
2006$495,100
2005$471,500
2004$436,400
2003$365,300
2002$365,300
2001$265,900
2000$242,800
1999$220,900
1998$214,300
1997$204,100
1996$194,400
1995$186,400
1994$186,400
1993$186,400
1992$192,800

Where is 29 Aberdeen St, Newton MA located on map?

Properties Nearby

Street AddressResidens/Landlords
 

FAQ about the house at 29 Aberdeen St, Newton, MA


NOTICE: You may not use RadioAwards or the information it provides to make decisions about employment, credit, housing or any other purpose that would require Fair Credit Reporting Act (FCRA) compliance. RadioAwards is not a Consumer Reporting Agency (CRA) as defined by the FCRA and does not provide consumer reports.