42 Chesley Rd, Newton MA  02459-1938 exterior

42 Chesley Rd Newton, MA 02459 / 1938

(UPDATED: 09/09/2025)
Property Report

Information about property on 42 Chesley Rd, Newton MA, 02459-1938. Find out owner contacts, building history, price, neighborhood at Homemetry Address Directory.

Property Details

An estate at 42 Chesley Road, Newton, MA.

Facts

  • Built in 1900
  • Property use Two Family
  • Lot size 3,790 sqft
  • Effective area 6,289 sqft
  • Gross building area 6,926 sqft
  • Building type Residential
  • Rooms 12
  • Bedrooms 6
  • Bathrooms 4
  • Stories 2,75
  • Exterior condition Average
  • Trim None
  • Foundation type Concrete
  • Roof material Asphalt Shingl
  • Fuel type Oil
  • Fireplaces 2
  • Frontage 55 feet
  • Basement area 1,036 sqft
  • Porch area 504 sqft
  • Heating & Cooling
  • Heat type Hot Wtr Radiat
  • Exterior Home Features
  • Exterior walls Clapboard
  • Roof type Gambrel

Features

  • Kitchen quality: Good

Householders and Tenants for 42 Chesley Rd, Newton MA

Possible residents contact details

Person Name Phone Number Additional Info
Alexander C Mathews Apt # 1
Alexander F Grau Age: 47
617-916-****
Amy Berning
Bevan P Londergan Age: 47 Apt # A
Residential status:
Renter
Job:
Food Preparation and Serving Related Occupations
Charles W Torrey
617-630-****
Christopher T Winkelman Age: 54 Apt # A
D Petrelli
617-795-****
David Petrelli Age: 47
617-332-****
Emmet W Ogara
Etiony R Aldarondo Age: 63
617-243-****
Eugenia V Barges
Frank E Mcgehee Age: 53
Helen G Dragoon Apt # 1
James L Garvin Age: 57
617-928-****
Kyu Y Lee
617-775-****
Residential status:
Renter
Job:
Sales Occupations
Maria S Carlo Age: 60
Olivia L Mathews
Olivia L Matthews Age: 54
Residential status:
Homeowner
PAL RE LLC
Peter P Barges Jr
Steven R Dugas Age: 69
Victoria Schwartz
727-528-****

Possible Businesses

Organization Phone Number Additional Info
KIDS TAKE ACTION, INC
Type of Business:
Nonprofit Corporation
Inactive:
20120618

Units - Who lives at 42 Chesley Rd, Newton MA

#1Alexander C Mathews 02459-1938
#ABevan P Londergan 02459-1938
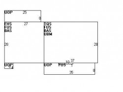
42 Chesley Rd, Newton MA  02459-1938 plot plan 42 Chesley Rd, Newton MA  02459-1938 floor plan 42 Chesley Rd, Newton MA  02459-1938 aerial view

Purchase History

DateEventPriceSourceAgents
12/02/2004 Sold $814,500 Public records
07/11/2002 Sold $799,000 Public records
09/02/1997 Sold $435,000 Public records

PURCHASE HISTORY 42 Chesley Rd, Newton MA

09/02/199712/02/2004Date$0$100k$200k$300k$400k$500k$600k$700k$800k$900kPrices

Cost estimate history

YearAssessment
2016 $1,265,400
2015 $1,182,600
2014 $1,126,100
2013 $1,126,100
2012 $1,126,100
2011 $1,119,100
2010 $1,141,900
2009 $1,202,000
2008 $1,202,000
2007 $1,230,100
2006$739,000
2005$717,500
2004$618,700
2003$542,700
2002$542,700
2001$463,300
2000$423,100
1999$385,000
1998$243,200
1997$223,100
1996$212,500
1995$223,000
1994$223,000
1993$223,000
1992$239,000

Where is 42 Chesley Rd, Newton MA located on map?

Properties Nearby

Street AddressResidens/Landlords
Carolina C Chin
29 Chesley Rd, Newton, MA 02459-1903
Two Family
  • 3 beds
  • 3 baths
  • 4,717 sqft
  • Built in 1910
Bing K Chin, Bing K Chin
30 Chesley Rd, Newton, MA 02459-1904
Two Family
  • 7 beds
  • 4 baths
  • 10,410 sqft
  • Built in 1860
Gary S Silverman, Minna G Silverman
32 Chesley Rd, Newton, MA 02459-1904
Two Family
  • 6 beds
  • 7.5 baths
  • 10,410 sqft
  • Built in 1860
32 CHESLEY ROAD REALTY TRUST, FIGONI MARY ANN TR
37 Chesley Rd, Newton, MA 02459-1903
Single Family
  • 3 beds
  • 1.5 baths
  • 2,681 sqft
  • Built in 1900
Caleb T Tower, Edith P Tower
 

FAQ about the house at 42 Chesley Rd, Newton, MA


NOTICE: You may not use RadioAwards or the information it provides to make decisions about employment, credit, housing or any other purpose that would require Fair Credit Reporting Act (FCRA) compliance. RadioAwards is not a Consumer Reporting Agency (CRA) as defined by the FCRA and does not provide consumer reports.