40 White Pine Rd, Newton MA  02464-1223 exterior

40 White Pine Rd Newton, MA 02464 / 1223

Residence for Single Family

(UPDATED: 08/14/2025)
  • 2 Beds
  • 1 Baths
  • 2.524 square feet
Property Report

Information about property on 40 White Pine Rd, Newton MA, 02464-1223. Find out owner contacts, building history, price, neighborhood at Homemetry Address Directory.

Property Details

At 40 White Pine Road, Newton, MA stands a property, which was built in 1939 and is positioned down the street.

Facts

  • Built in 1939
  • Property use Single Family
  • Lot size 7,575 sqft
  • Effective area 2,344 sqft
  • Gross building area 2,524 sqft
  • Building type Residential
  • Rooms 6
  • Bedrooms 2
  • Stories 1,75
  • Exterior condition Average
  • Trim Full Wall
  • Foundation type Brick/Fldstone
  • Roof material Asphalt Shingl
  • Fuel type Gas
  • Air conditioning Central
  • Frontage 75 feet
  • Basement area 720 sqft
  • Attached garage area 220 sqft
  • Heating & Cooling
  • Heat type Forced Air-Duc
  • Exterior Home Features
  • Exterior walls Wood Shingle
  • Roof type Gable

Features

  • Kitchen quality: Above Average

Householders and Tenants for 40 White Pine Rd, Newton MA

Possible residents contact details

Person Name Phone Number Additional Info
Adam Hayes Age: 39
638-596-****
Residential status:
Homeowner
Alma N Tartaro
Augusta V Elliott
CATHERINE HAYES REVOCABLE TRUST
Catherine Tr Hayes Age: 65
Residential status:
Homeowner
Job:
Food Preparation and Serving Related Occupations
Frank M Tartaro
Hayes T Hayes
617-965-****
Residential status:
Homeowner
MILLER-TARTARO RANDI &AL
Victor M Tartaro
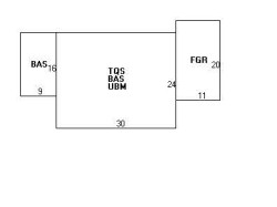
40 White Pine Rd, Newton MA  02464-1223 plot plan 40 White Pine Rd, Newton MA  02464-1223 floor plan 40 White Pine Rd, Newton MA  02464-1223 aerial view

Purchase History

DateEventPriceSourceAgents
06/22/1995 Sold $245,000 Public records

Cost estimate history

YearAssessment
2016 $502,000
2015 $469,200
2014 $416,500
2013 $416,500
2012 $416,500
2011 $426,100
2010 $434,800
2009 $443,700
2008 $443,700
2007 $483,100
2006$469,000
2005$446,700
2004$371,300
2003$331,500
2002$331,500
2001$279,200
2000$255,000
1999$232,000
1998$210,800
1997$202,700
1996$199,600
1995$170,700
1994$170,700
1993$170,700
1992$182,000

Where is 40 White Pine Rd, Newton MA located on map?

40 White Pine Rd Fire Incident History

To date, we have no information about fire incidents in 2025
08 Jan 2017 Building fires
Property Use —
1 or 2 family dwelling
Area of Origin —
Exterior stairway, ramp, or fire escape
First Ignition —
Exterior trim, including doors

White Pne Rd Fire Incident History

To date, we have no information about fire incidents in 2025
08 Jan 2017 Building fires
Property Use —
1 or 2 family dwelling
Area of Origin —
Exterior stairway, ramp, or fire escape
First Ignition —
Exterior trim, including doors

Properties Nearby

Street AddressResidens/Landlords
19 White Pne Rd, Newton, MA 02464-1222
Single Family
  • 3 beds
  • 3.5 baths
  • 4,571 sqft
  • Built in 1940
Jean B Smith, Juan B Albert
23 White Pne Rd, Newton, MA 02464-1222
Single Family
  • 4 beds
  • 2 baths
  • 3,098 sqft
  • Built in 1940
Jerry M Legocki, Mariola Z Legocki
29 White Pne Rd, Newton, MA 02464-1222
Single Family
  • 4 beds
  • 3 baths
  • 4,887 sqft
  • Built in 1939
Susan T Leichtman, Sandra Smith
34 White Pne Rd, Newton, MA 02464-1223
Single Family
  • 4 beds
  • 2.5 baths
  • 3,408 sqft
  • Built in 1937
SIEGFRIED-HARRIS KELLEE, Matthew Pierce Harris
39 White Pne Rd, Newton, MA 02464-1237
Single Family
  • 3 beds
  • 2 baths
  • 3,232 sqft
  • Built in 1940
Eric Blanchard, Paul R Blanchard
46 White Pne Rd, Newton, MA 02464-1223
Single Family
  • 3 beds
  • 1.5 baths
  • 2,487 sqft
  • Built in 1941
George T Mumford, Edye N Merzer
47 White Pne Rd, Newton, MA 02464-1237
Single Family
  • 3 beds
  • 2.5 baths
  • 3,698 sqft
  • Built in 1940
BREGER EILEEN LEE, Louis Breger
55 White Pne Rd, Newton, MA 02464-1237
Single Family
  • 3 beds
  • 1.5 baths
  • 3,956 sqft
  • Built in 1941
Mara L Cohen, WHITE PINE REALTY TRUST
56 White Pne Rd, Newton, MA 02464-1257
Single Family
  • 2 beds
  • 1 bath
  • 3,099 sqft
  • Built in 1939
Marc A Rubin, TORRES-RUBIN LOURDES &AL
60 White Pne Rd, Newton, MA 02464-1257
Single Family
  • 5 beds
  • 3.5 baths
  • 5,976 sqft
  • Built in 1941
MILLER-TARTARO RANDI, MILLER-TARTARO RANDI &AL
 

FAQ about the house at 40 White Pne Rd, Newton, MA


NOTICE: You may not use RadioAwards or the information it provides to make decisions about employment, credit, housing or any other purpose that would require Fair Credit Reporting Act (FCRA) compliance. RadioAwards is not a Consumer Reporting Agency (CRA) as defined by the FCRA and does not provide consumer reports.