Purchase History
| Date | Event | Price | Source | Agents |
|---|---|---|---|---|
| 06/23/2006 | Sold | $950,000 | Public records | |
| 06/30/2005 | Sold | $949,000 | Public records | |
| 02/21/2002 | Sold | $492,000 | Public records |
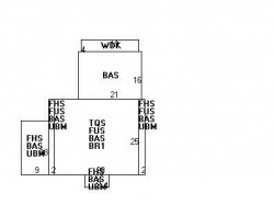
PURCHASE HISTORY 295 Homer St, Newton MA
Cost estimate history
| Year | Assessment | ||
|---|---|---|---|
| 2016 | $1,007,900 | ||
| 2015 | $942,000 | ||
| 2014 | $892,200 | ||
| 2013 | $892,200 | ||
| 2012 | $892,200 | ||
| 2011 | $880,300 | ||
| 2010 | $889,400 | ||
| 2009 | $882,300 | ||
| 2008 | $882,300 | ||
| 2007 | $829,400 | ||
| 2006 | $805,200 | ||
| 2005 | $766,900 | ||
| 2004 | $617,100 | ||
| 2003 | $456,500 | ||
| 2002 | $456,500 | ||
| 2001 | $381,400 | ||
| 2000 | $348,300 | ||
| 1999 | $316,900 | ||
| 1998 | $286,800 | ||
| 1997 | $263,100 | ||
| 1996 | $250,600 | ||
| 1995 | $224,700 | ||
| 1994 | $224,700 | ||
| 1993 | $224,700 | ||
| 1992 | $259,700 |
Building Permits
To date, we have no information about building permits in 2025
Dec 3, 2015
Description: Remove and replace roof with epdm rubber, repair size is approx 2-3 square
- Contractor: Newton Roofing Company
- Valuation: $50,000
- Fee: $100.00 paid to City of Newton, Massachusetts
- Parcel #: 64012 0018
- Permit #: 15120136
Jan 3, 2008
Description: Two bathroom renovations
- Contractor: Sergio R Deassis
- Valuation: $2,315,000
- Fee: $430.59 paid to City of Newton, Massachusetts
- Parcel #: 64012 0018
- Permit #: 08010065
295 Homer St Fire Incident History
To date, we have no information about fire incidents in 2025
31 Jul 2004
Building fires
Property Use —
Parking garage, (detached residential garage)
Area of Origin —
Chute/container - trash, rubbish, waste
First Ignition —
Box, carton, bag, basket, barrel
Heat Source —
Chemical reaction
Homer St Fire Incident History
To date, we have no information about fire incidents in 2025
31 Jul 2004
Building fires
Property Use —
Parking garage, (detached residential garage)
Area of Origin —
Chute/container - trash, rubbish, waste
First Ignition —
Box, carton, bag, basket, barrel
Heat Source —
Chemical reaction
Homer St Incidents registered in FEMA
(Federal Emergency Management Agency)
To date, we have no information about incidents registered in FEMA in 2025
05 Sep 2010
Authorized controlled burning
Property Use —
1 or 2 family dwelling
17 Apr 2008
Arcing, shorted electrical equipment
Property Use —
Residential street, road or residential driveway
13 Jan 2007
Gas leak (natural gas or LPG)
Property Use —
1 or 2 family dwelling
04 Mar 2004
Overheated motor
Property Use —
Library
Properties Nearby
| Street Address | Residens/Landlords | |
|---|---|---|
31 Homer St, Newton, MA 02459-1511 Single Family
|
Lenard W Macbain, Len S Macbain |


