290 Winchester St, Newton MA  02461-2034 exterior

290 Winchester St Newton, MA 02461 / 2034

(UPDATED: 08/02/2025)
Property Report

Information about property on 290 Winchester St, Newton MA, 02461-2034. Find out owner contacts, building history, price, neighborhood at Homemetry Address Directory.

Units

Property details of units in this apartment building

#NA

  • 1,973 sqft
  • 3 beds
  • 2 baths

Property Details

As is shown in our records this property is situated at 290 Winchester St, Newton, Massachusetts.

Facts

  • Built in 1952
  • Property use Single Family
  • Lot size 13,840 sqft
  • Effective area 2,004 sqft
  • Gross building area 2,524 sqft
  • Building type Residential
  • Rooms 7
  • Bedrooms 3
  • Bathrooms 2
  • Stories 1
  • Exterior condition Average
  • Trim None
  • Foundation type Conc Block
  • Roof material Asphalt Shingl
  • Fuel type Gas
  • Air conditioning Unit/AC
  • Frontage 78 feet
  • Basement area 1,040 sqft
  • Finished basement area 520 sqft
  • Enclosed porch area 30 sqft
  • Deck area 144 sqft
  • Heating & Cooling
  • Heat type Forced Air-Duc
  • Exterior Home Features
  • Exterior walls Stucco on Wood
  • Roof type Gable

Householders and Tenants for 290 Winchester St, Newton MA

Possible residents contact details

Person Name Phone Number Additional Info
290 WINCHESTER STREET REALTY TRUST S TRS
A Sergey
617-243-****
Margarita Aris Age: 69
617-244-****
Margherita Aristarkhov Age: 69
617-243-****
Nikita Aristarkhov Age: 40
617-835-****
Paula E Shifman Age: 84
Richard M Shifman Age: 83
Sergey V Aristarkhov Age: 70
617-771-****
Residential status:
Homeowner

Units - Who lives at 290 Winchester St, Newton MA

#NA3 beds, 2 baths, 1,973 sqft02461-2034
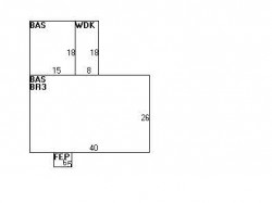
290 Winchester St, Newton MA  02461-2034 plot plan 290 Winchester St, Newton MA  02461-2034 floor plan 290 Winchester St, Newton MA  02461-2034 aerial view

Purchase History

DateEventPriceSourceAgents
02/22/2002 Sold $373,800 Public records

Cost estimate history

YearAssessment
2016 $489,800
2015 $457,800
2014 $437,500
2013 $437,500
2012 $437,500
2011 $432,400
2010 $441,200
2009 $450,200
2008 $450,200
2007 $461,600
2006$448,200
2005$426,900
2004$388,300
2003$346,700
2002$346,700
2001$304,600
2000$278,200
1999$253,100
1998$245,100
1997$231,200
1996$220,200
1995$206,500
1994$204,500
1993$204,500
1992$223,000

Where is 290 Winchester St, Newton MA located on map?

Market Activities

To date, we have no information about market activities in 2025
Dec 2023 Recent Rent
290 Winchester St #NA
Price history :
  • Single Family
  • 1,973 sqft
  • 3 beds
  • 2 baths
Mar 2021 Sold
290 Winchester St
Price history :
  • Single Family
  • 1,973 sqft
  • 3 beds
  • 2 baths

View more

Winchester St Fire Incident History

To date, we have no information about fire incidents in 2025
31 Oct 2010 Brush, or brush and grass mixture fire
Property Use —
Residential street, road or residential driveway
First Ignition —
Item First Ignited, Other
16 May 2008 Outside rubbish, trash or waste fire
Property Use —
Vehicle parking area
Area of Origin —
Vehicle area, other
First Ignition —
Rubbish, trash, or waste

Winchester St Incidents registered in FEMA
(Federal Emergency Management Agency)

To date, we have no information about incidents registered in FEMA in 2025
25 Sep 2013 Vehicle accident, general cleanup
Property Use —
Street or road in commercial area
04 May 2013 Vehicle accident, general cleanup
Property Use —
Street or road in commercial area
14 Mar 2012 Gas leak (natural gas or LPG)
Property Use —
Street or road in commercial area
15 Oct 2010 Hazardous condition, other
Property Use —
Clinics, Doctors offices, hemodialysis centers

View more

Properties Nearby

Street AddressResidens/Landlords
269 Winchester St, Newton, MA 02461-2042
Single Family
  • 2 beds
  • 1 bath
  • 2,122 sqft
  • Built in 1900
Annabelle Ship, A Ship
272 Winchester St, Newton, MA 02461-2034
Single Family
  • 2 beds
  • 2 baths
  • 3,182 sqft
  • Built in 1953
Judith A Lipton, Yefim M Estrin
275 Winchester St, Newton, MA 02461-2042
Single Family
  • 5 beds
  • 4 baths
  • 5,270 sqft
  • Built in 1952
George P Hinchey, Paula K Tr Andrews
283 Winchester St, Newton, MA 02461-2042
Single Family
  • 3 beds
  • 1 bath
  • 3,000 sqft
  • Built in 1950
Jianbin Du, Yonghong Gu
284 Winchester St, Newton, MA 02461-2034
Single Family
  • 3 beds
  • 1.5 baths
  • 2,478 sqft
  • Built in 1956
Lyudmila Y Starobinets, Igor M Starobinets
291 Winchester St, Newton, MA 02461-2042
Single Family
  • 4 beds
  • 2.5 baths
  • 4,408 sqft
  • Built in 1952
Robert C Martin, Yasodhara Paruchuru
296 Winchester St, Newton, MA 02461-2054
Single Family
  • 5 beds
  • 3.5 baths
  • 4,397 sqft
  • Built in 1940
DU WENBO, Lev E Massarsky
297 Winchester St, Newton, MA 02461-2042
Single Family
  • 5 beds
  • 3.5 baths
  • 4,292 sqft
  • Built in 1950
Fred Chan, Barbara Y Chan
302 Winchester St, Newton, MA 02461-2051
Single Family
  • 3 beds
  • 4 baths
  • 4,107 sqft
  • Built in 1940
Yefim Massarsky, Ellen B Massarsky
Terence A Sack, Gerald Sack
 

FAQ about the house at 290 Winchester St, Newton, MA


NOTICE: You may not use RadioAwards or the information it provides to make decisions about employment, credit, housing or any other purpose that would require Fair Credit Reporting Act (FCRA) compliance. RadioAwards is not a Consumer Reporting Agency (CRA) as defined by the FCRA and does not provide consumer reports.