25 Lucille Pl, Newton MA  02464-1210 exterior

25 Lucille Pl Newton, MA 02464 / 1210

Residence for Single Family

(UPDATED: 07/30/2025)
  • 3 Beds
  • 2 Baths
  • 2.436 square feet
Property Report

Information about property on 25 Lucille Pl, Newton MA, 02464-1210. Find out owner contacts, building history, price, neighborhood at Homemetry Address Directory.

Property Details

This property with near twenty-two hundred square feet of effective area on 0,13 acres was erected in the fifties.

Facts

  • Built in 1950
  • Property use Single Family
  • Lot size 5,827 sqft
  • Effective area 2,196 sqft
  • Gross building area 2,436 sqft
  • Building type Residential
  • Rooms 5
  • Bedrooms 3
  • Bathrooms 2
  • Stories 1
  • Exterior condition Average
  • Trim None
  • Foundation type Conc Block
  • Roof material Asphalt Shingl
  • Fuel type Gas
  • Air conditioning Central
  • Frontage 90 feet
  • Basement area 960 sqft
  • Finished basement area 720 sqft
  • Enclosed porch area 32 sqft
  • Attached garage area 264 sqft
  • Heating & Cooling
  • Heat type Forced Air-Duc
  • Exterior Home Features
  • Exterior walls Clapboard
  • Roof type Gable

Features

  • Kitchen quality: Above Average
  • Interior condition: Good

Householders and Tenants for 25 Lucille Pl, Newton MA

Possible residents contact details

Person Name Phone Number Additional Info
COHEN PAUL EST
Chi Y Man
Connie Wai Tong
617-964-****
Louise Cohen Age: 119
617-332-****
Melissa Man
Paul Cohen Age: 81
617-780-****
Residential status:
Homeowner
Job:
Service Occupations
RANBERG JANET EXTRX
Sidney Cohen
617-780-****
Residential status:
Homeowner
Job:
Service Occupations
Sydney Cohen
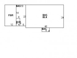
25 Lucille Pl, Newton MA  02464-1210 plot plan 25 Lucille Pl, Newton MA  02464-1210 floor plan 25 Lucille Pl, Newton MA  02464-1210 aerial view

Purchase History

DateEventPriceSourceAgents
06/15/2004 Sold $410,000 Public records

Cost estimate history

YearAssessment
2016 $567,000
2015 $529,900
2014 $497,800
2013 $497,800
2012 $490,000
2011 $496,400
2010 $506,500
2009 $516,800
2008 $460,400
2007 $495,300
2006$480,900
2005$405,400
2004$332,000
2003$296,400
2002$296,400
2001$250,600
2000$228,900
1999$208,300
1998$182,900
1997$175,900
1996$175,900
1995$154,700
1994$154,700
1993$154,700
1992$168,400

Where is 25 Lucille Pl, Newton MA located on map?

Lucille Pl Incidents registered in FEMA
(Federal Emergency Management Agency)

To date, we have no information about incidents registered in FEMA in 2025
15 Aug 2006 Arcing, shorted electrical equipment
Property Use —
1 or 2 family dwelling

Properties Nearby

Street Address Residens/Landlords
 

FAQ about the house at 25 Lucille Pl, Newton, MA


NOTICE: You may not use RadioAwards or the information it provides to make decisions about employment, credit, housing or any other purpose that would require Fair Credit Reporting Act (FCRA) compliance. RadioAwards is not a Consumer Reporting Agency (CRA) as defined by the FCRA and does not provide consumer reports.