160 Edinboro St, Newton MA  02460-1302 exterior

160 Edinboro St Newton, MA 02460 / 1302

Residence for Single Family

(UPDATED: 09/17/2025)
  • 3 Beds
  • 3 Baths
  • 4.506 square feet
Property Report

Information about property on 160 Edinboro St, Newton MA, 02460-1302. Find out owner contacts, building history, price, neighborhood at Homemetry Address Directory.

Property Details

A single-family possession at 160 Edinboro Street, Newton, Massachusetts.

Facts

  • Built in 1951
  • Property use Single Family
  • Lot size 16,120 sqft
  • Effective area 3,450 sqft
  • Gross building area 4,506 sqft
  • Building type Residential
  • Rooms 8
  • Bedrooms 3
  • Stories 1,75
  • Exterior condition Average
  • Trim None
  • Foundation type Concrete
  • Roof material Asphalt Shingl
  • Fuel type Oil
  • Frontage 70 feet
  • Basement area 1,344 sqft
  • Finished basement area 672 sqft
  • Porch area 48 sqft
  • Enclosed porch area 210 sqft
  • Deck area 168 sqft
  • Heating & Cooling
  • Heat type Hot Water
  • Exterior Home Features
  • Exterior walls Brick Veneer
  • Roof type Gable

Features

  • Kitchen quality: Above Average

Householders and Tenants for 160 Edinboro St, Newton MA

Possible residents contact details

Person Name Phone Number Additional Info
Frances A Vecchione Age: 61
617-964-****
HEATON RICHARD B EST
Kevin J Vecchione Age: 61
617-964-****
Residential status:
Homeowner
Job:
Professional/Technical
Linda L Heaton
Nancy J Bartley
Richard B Heaton Age: 113
617-527-****
Steven Heaton
617-527-****

Businesses

Organization Phone Number Additional Info
Kevin Vecchione
617-964-****
Categories:
Business Services
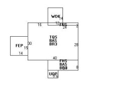
160 Edinboro St, Newton MA  02460-1302 plot plan 160 Edinboro St, Newton MA  02460-1302 floor plan 160 Edinboro St, Newton MA  02460-1302 aerial view

Purchase History

DateEventPriceSourceAgents
04/18/2006 Sold $450,000 Public records

Cost estimate history

YearAssessment
2016 $754,600
2015 $705,200
2014 $669,200
2013 $669,200
2012 $669,200
2011 $758,500
2010 $774,000
2009 $789,800
2008 $690,400
2007 $544,300
2006$528,400
2005$503,200
2004$451,000
2003$402,700
2002$402,700
2001$318,800
2000$291,100
1999$264,900
1998$239,600
1997$226,000
1996$215,200
1995$194,700
1994$194,700
1993$194,700
1992$217,700

Where is 160 Edinboro St, Newton MA located on map?

Properties Nearby

Street AddressResidens/Landlords
 

FAQ about the house at 160 Edinboro St, Newton, MA


NOTICE: You may not use RadioAwards or the information it provides to make decisions about employment, credit, housing or any other purpose that would require Fair Credit Reporting Act (FCRA) compliance. RadioAwards is not a Consumer Reporting Agency (CRA) as defined by the FCRA and does not provide consumer reports.