16 Bemis St Newton, MA 02460 / 1103

Residence for Single Family

(UPDATED: 08/08/2025)
  • 3 Beds
  • 1 Baths
  • 2.724 square feet
Sold Nov 2017
$830,000
Property Report

Information about property on 16 Bemis St, Newton MA, 02460-1103. Find out owner contacts, building history, price, neighborhood at Homemetry Address Directory.

Property Details

A single-family home at 16 Bemis Street, Newton, MA.

Facts

  • Built in 1916
  • Property use Single Family
  • Lot size 12,996 sqft
  • Effective area 2,124 sqft
  • Gross building area 2,724 sqft
  • Building type Residential
  • Rooms 7
  • Bedrooms 3
  • Bathrooms 1
  • Stories 2
  • Exterior condition Average
  • Trim None
  • Foundation type Concrete
  • Roof material Asphalt Shingl
  • Fuel type Gas
  • Frontage 70 feet
  • Basement area 800 sqft
  • Finished basement area 200 sqft
  • Porch area 52 sqft
  • Deck area 112 sqft
  • Detached garage area 400 sqft
  • Heating & Cooling
  • Heat type Hot Wtr Radiat
  • Exterior Home Features
  • Exterior walls Vinyl Siding
  • Roof type Gable

Features

  • Kitchen quality: Below Average
  • Bath quality: Above Average

Householders and Tenants for 16 Bemis St, Newton MA

Possible residents contact details

Person Name Phone Number Additional Info
Benjamin A Bates
617-332-****
Residential status:
Homeowner
Christopher Wilson Age: 73
617-332-****
Residential status:
Homeowner
G Hardwicke
617-332-****
Greer M Hardwicke
617-332-****
Residential status:
Homeowner
M G Hardwicke Age: 75
617-332-****
Mary G Hardwicke Age: 75
617-332-****
Michele G Bates Age: 47
617-332-****
Residential status:
Homeowner
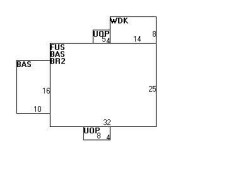
16 Bemis St, Newton MA  02460-1103 plot plan 16 Bemis St, Newton MA  02460-1103 floor plan 16 Bemis St, Newton MA  02460-1103 aerial view

Purchase History

DateEventPriceSourceAgents
08/30/1989 Sold $268,000 Public records

Cost estimate history

YearAssessment
2016 $627,400
2015 $586,400
2014 $559,300
2013 $559,300
2012 $559,300
2011 $559,000
2010 $570,400
2009 $582,000
2008 $582,000
2007 $589,500
2006$572,300
2005$545,000
2004$499,000
2003$445,500
2002$433,000
2001$360,100
2000$328,900
1999$299,300
1998$270,100
1997$254,800
1996$242,700
1995$228,600
1994$224,100
1993$224,100
1992$228,300

Where is 16 Bemis St, Newton MA located on map?

Market Activities

To date, we have no information about market activities in 2025
Nov 2017 Sold
16 Bemis St
Price history :
  • 1,760
  • 3 beds
  • 2 baths

View more

Properties Nearby

Street AddressResidens/Landlords
 

FAQ about the house at 16 Bemis St, Newton, MA


NOTICE: You may not use RadioAwards or the information it provides to make decisions about employment, credit, housing or any other purpose that would require Fair Credit Reporting Act (FCRA) compliance. RadioAwards is not a Consumer Reporting Agency (CRA) as defined by the FCRA and does not provide consumer reports.