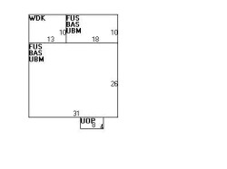
Cost estimate history
| Year | Assessment | ||
|---|---|---|---|
| 2016 | $475,000 | ||
| 2015 | $443,900 | ||
| 2014 | $421,300 | ||
| 2013 | $421,300 | ||
| 2012 | $421,300 | ||
| 2011 | $421,000 | ||
| 2010 | $429,600 | ||
| 2009 | $438,200 | ||
| 2008 | $438,200 | ||
| 2007 | $502,100 | ||
| 2006 | $487,500 | ||
| 2005 | $464,300 | ||
| 2004 | $362,200 | ||
| 2003 | $323,400 | ||
| 2002 | $323,400 | ||
| 2001 | $263,200 | ||
| 2000 | $240,400 | ||
| 1999 | $218,700 | ||
| 1998 | $203,700 | ||
| 1997 | $203,700 | ||
| 1996 | $194,000 | ||
| 1995 | $187,600 | ||
| 1994 | $191,400 | ||
| 1993 | $174,700 | ||
| 1992 | $185,200 |
151 Jewett St Fire Incident History
To date, we have no information about fire incidents in 2025
21 Sep 2010
Brush, or brush and grass mixture fire
Property Use —
Residential street, road or residential driveway
Area of Origin —
Highway, parking lot, street: on or near
First Ignition —
Chips, including wood chips
Heat Source —
Cigarette
Jewett St Fire Incident History
To date, we have no information about fire incidents in 2025
21 Sep 2010
Brush, or brush and grass mixture fire
Property Use —
Residential street, road or residential driveway
Area of Origin —
Highway, parking lot, street: on or near
First Ignition —
Chips, including wood chips
Heat Source —
Cigarette
26 Jul 2004
Special outside fire, other
Property Use —
1 or 2 family dwelling
Area of Origin —
Cooking area, kitchen
First Ignition —
Flammable liquid/gas - in/from final container
Heat Source —
Spark, ember or flame from operating equipment
Properties Nearby
| Street Address | Residens/Landlords | |
|---|---|---|
35 Jewett St, Newton, MA 02458-1501 Two Family
|
Andrew J Boggini, Dustin Clevenger | |
36 Jewett St, Newton, MA 02458-1506 Two Family
|
Campus Preview, Stacey M Annese | |
61 Jewett St, Newton, MA 02458-1512 Two Family
|
Jennifer P Harig, Kimberl Kelsea | |
67 Jewett St, Newton, MA 02458-1512 Two Family
|
Andy J Li, MARSHALL-TAYLOR CRISTINA |


