130 Rachel Rd, Newton MA  02459-2913 exterior

130 Rachel Rd Newton, MA 02459 / 2913

Residence for Single Family

(UPDATED: 07/12/2025)
  • 3 Beds
  • 3 Baths
  • 3.970 square feet
Property Report

Information about property on 130 Rachel Rd, Newton MA, 02459-2913. Find out owner contacts, building history, price, neighborhood at Homemetry Address Directory.

Property Details

This is a single-family home, which is situated at 130 Rachel Road, Newton, Massachusetts.

Facts

  • Built in 1972
  • Property use Single Family
  • Lot size 15,339 sqft
  • Effective area 3,970 sqft
  • Building type Residential
  • Rooms 8
  • Bedrooms 3
  • Exterior condition Average
  • Trim None
  • Foundation type Concrete
  • Roof material Asphalt Shingl
  • Fuel type Gas
  • Air conditioning Central
  • Frontage 110 feet
  • Basement area 1,758 sqft
  • Finished basement area 440 sqft
  • Enclosed porch area 256 sqft
  • Deck area 198 sqft
  • Basement garages 2
  • Heating & Cooling
  • Heat type Hot Water
  • Exterior Home Features
  • Exterior walls Wood Shingle
  • Roof type Gable

Features

  • Kitchen quality: Good
  • Bath quality: Above Average

Householders and Tenants for 130 Rachel Rd, Newton MA

Possible residents contact details

Person Name Phone Number Additional Info
Edna C Butaney Age: 83
617-964-****
Residential status:
Homeowner
Job:
Medical Professional
Hiro T Butaney Age: 85
617-964-****
Residential status:
Homeowner
Job:
Professional/Technical
Krishna A Butaney Age: 83
617-964-****
Residential status:
Homeowner
Job:
Construction and Extraction Occupations

Possible Businesses

Organization Phone Number Additional Info
EDNA C.A. BUTANEY, M.D. FOUNDATION, INC., THE
Type of Business:
Nonprofit Corporation
Inactive:
20120618
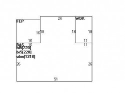
130 Rachel Rd, Newton MA  02459-2913 plot plan 130 Rachel Rd, Newton MA  02459-2913 floor plan 130 Rachel Rd, Newton MA  02459-2913 aerial view

Cost estimate history

YearAssessment
2016 $925,800
2015 $865,200
2014 $830,500
2013 $830,500
2012 $830,500
2011 $838,000
2010 $855,100
2009 $872,600
2008 $872,600
2007 $896,700
2006$870,600
2005$829,100
2004$801,700
2003$715,800
2002$593,600
2001$494,900
2000$452,000
1999$411,300
1998$383,800
1997$383,800
1996$365,500
1995$321,000
1994$305,700
1993$305,700
1992$357,800

Where is 130 Rachel Rd, Newton MA located on map?

Rachel Rd Incidents registered in FEMA
(Federal Emergency Management Agency)

To date, we have no information about incidents registered in FEMA in 2025
12 Jun 2007 Gas leak (natural gas or LPG)
Property Use —
Residential street, road or residential driveway

Properties Nearby

Street AddressResidens/Landlords
17 Rachel Rd, Newton, MA 02459-2922
Single Family
  • 5 beds
  • 4 baths
  • 6,220 sqft
  • Built in 1965
Ursula August, Paul Naddaff
22 Rachel Rd, Newton, MA 02459-2925
Single Family
  • 4 beds
  • 3.5 baths
  • 4,634 sqft
  • Built in 1964
Angela I Lin, David C Yu
34 Rachel Rd, Newton, MA 02459-2925
Single Family
  • 3 beds
  • 3.5 baths
  • 3,972 sqft
  • Built in 1962
Edw M Levin, Edward M Levin
 

FAQ about the house at 130 Rachel Rd, Newton, MA


NOTICE: You may not use RadioAwards or the information it provides to make decisions about employment, credit, housing or any other purpose that would require Fair Credit Reporting Act (FCRA) compliance. RadioAwards is not a Consumer Reporting Agency (CRA) as defined by the FCRA and does not provide consumer reports.