13 Edith St Arlington, MA 02474-8820

(UPDATED: 07/05/2025)
Property Detail Report View Neighbors

Where is 13 Edith St, Arlington MA located on map?

Sold May 2021
$720,000
13 Edith St, Arlington MA  02474-8820 exterior

Property Details:

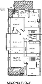
Bedrooms: 3Bathrooms: 1

Market Activities

To date, we have no information about market activities in 2025
May 2021 Sold
13 Edith St #13
Price history :
  • Condo
  • 1,097 sqft
  • 3 beds
  • 1 bath
Apr 2021 Sold
13 Edith St #13
Price history :
  • Condo
  • 1,097 sqft
  • 3 beds
  • 1 bath

View more

Possible residents for #13

Resident Name Phone Number Additional Info
Marie R Conlon
781-643-****
Stephen B Conlon Age: 67
781-643-****
Residential status:
Homeowner
Job:
Professional/Technical
Perdo Maisonet

NOTICE: You may not use RadioAwards or the information it provides to make decisions about employment, credit, housing or any other purpose that would require Fair Credit Reporting Act (FCRA) compliance. RadioAwards is not a Consumer Reporting Agency (CRA) as defined by the FCRA and does not provide consumer reports.