98 Garland Rd, Newton MA  02459-1710 exterior

98 Garland Rd Newton, MA 02459 / 1710

Residence for Single Family

(UPDATED: 07/28/2025)
  • 3 Beds
  • 2 Baths
  • 4.909 square feet
Property Report

Information about property on 98 Garland Rd, Newton MA, 02459-1710. Find out owner contacts, building history, price, neighborhood at Homemetry Address Directory.

Property Details

Developed in the twenties, this property has near forty-five hundred square feet of effective area and sits on 0,19 acres.

Facts

  • Built in 1929
  • Property use Single Family
  • Lot size 8,342 sqft
  • Effective area 4,450 sqft
  • Gross building area 4,909 sqft
  • Building type Residential
  • Rooms 8
  • Bedrooms 3
  • Stories 2
  • Exterior condition Average
  • Trim None
  • Foundation type Concrete
  • Roof material Slate
  • Fuel type Oil
  • Air conditioning Central
  • Frontage 65 feet
  • Unfinished attic area 459 sqft
  • Basement area 1,176 sqft
  • Enclosed porch area 32 sqft
  • Deck area 689 sqft
  • Basement garages 1
  • Heating & Cooling
  • Heat type Hot Water
  • Exterior Home Features
  • Exterior walls Brick Veneer
  • Roof type Gable

Features

  • Kitchen quality: Above Average

Householders and Tenants for 98 Garland Rd, Newton MA

Possible residents contact details

Person Name Phone Number Additional Info
Arleen L Horblitt
Brian Keidan
Christophe Mangone Age: 48
Christopher C Mangone Age: 48
617-969-****
Darlene C Mangone Age: 78
Eve E Sadowsky Age: 65
617-332-****
Heidi A Tr Sacks
JABR TRUST
JABR TRUST /S TR &AL
Jillian C Mangone Age: 46
John F Heneghan Age: 64
617-332-****
John H Sadowsky Age: 64
617-332-****
Residential status:
Homeowner
MANGONE DARLENE CHASE
Rose Alperin
Sidney Horblitt
Theresa Tr Sullivan
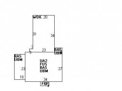
98 Garland Rd, Newton MA  02459-1710 plot plan 98 Garland Rd, Newton MA  02459-1710 floor plan 98 Garland Rd, Newton MA  02459-1710 aerial view

Purchase History

DateEventPriceSourceAgents
07/28/2008 Sold $799,000 Public records

Cost estimate history

YearAssessment
2016 $849,500
2015 $793,900
2014 $755,900
2013 $755,900
2012 $737,300
2011 $735,200
2010 $750,200
2009 $761,600
2008 $761,600
2007 $800,300
2006$777,000
2005$740,000
2004$671,600
2003$599,600
2002$599,600
2001$522,500
2000$477,200
1999$434,200
1998$363,100
1997$333,100
1996$317,200
1995$298,500
1994$298,500
1993$298,500
1992$307,400

Where is 98 Garland Rd, Newton MA located on map?

Garland Rd Incidents registered in FEMA
(Federal Emergency Management Agency)

To date, we have no information about incidents registered in FEMA in 2025
29 Oct 2011 Hazardous condition, other
Property Use —
Residential street, road or residential driveway

Properties Nearby

Street AddressResidens/Landlords
Maureen A Castellana
 

FAQ about the house at 98 Garland Rd, Newton, MA


NOTICE: You may not use RadioAwards or the information it provides to make decisions about employment, credit, housing or any other purpose that would require Fair Credit Reporting Act (FCRA) compliance. RadioAwards is not a Consumer Reporting Agency (CRA) as defined by the FCRA and does not provide consumer reports.