Purchase History
| Date | Event | Price | Source | Agents |
|---|---|---|---|---|
| 04/12/2013 | Sold | $625,000 | Public records | John Yemma |
| 05/14/2012 | Sold | $569,250 | Public records | |
| 05/15/2007 | Sold | $707,500 | Public records | |
| 07/31/1998 | Sold | $405,000 | Public records |
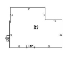
PURCHASE HISTORY 975 Dedham St, Newton MA
Cost estimate history
| Year | Assessment | ||
|---|---|---|---|
| 2016 | $993,600 | ||
| 2015 | $928,600 | ||
| 2014 | $640,500 | ||
| 2013 | $640,500 | ||
| 2012 | $640,500 | ||
| 2011 | $664,100 | ||
| 2010 | $677,700 | ||
| 2009 | $691,500 | ||
| 2008 | $691,500 | ||
| 2007 | $635,300 | ||
| 2006 | $616,800 | ||
| 2005 | $587,400 | ||
| 2004 | $544,000 | ||
| 2003 | $485,700 | ||
| 2002 | $485,700 | ||
| 2001 | $411,800 | ||
| 2000 | $392,200 | ||
| 1999 | $356,900 | ||
| 1998 | $294,100 | ||
| 1997 | $284,200 | ||
| 1996 | $270,700 | ||
| 1995 | $329,600 | ||
| 1994 | $313,900 | ||
| 1993 | $313,900 | ||
| 1992 | $340,100 |
Dedham St Fire Incident History
To date, we have no information about fire incidents in 2025
27 Nov 2010
Trash or rubbish fire, contained
Property Use —
Dormitory type residence, other
Area of Origin —
Corridor, mall
Heat Source —
Cigarette
18 Jul 2010
Grass fire
Property Use —
Swimming facility: indoor or outdoor
Area of Origin —
Courtyard, patio, porch, terrace
First Ignition —
Light vegetation - not crop, including grass
23 Mar 2003
Building fires
Property Use —
1 or 2 family dwelling
Area of Origin —
Bathroom, checkroom, lavatory, locker room
First Ignition —
Electrical wire, cable insulation
Heat Source —
Radiated, conducted heat from operating equipment
22 Mar 2003
Building fires
Property Use —
Multifamily dwellings
Area of Origin —
Attic: vacant, crawl space above top story, cupola
First Ignition —
Insulation within structural area
Heat Source —
Heat source: other
Dedham St Incidents registered in FEMA
(Federal Emergency Management Agency)
To date, we have no information about incidents registered in FEMA in 2025
08 Sep 2015
Arcing, shorted electrical equipment
Property Use —
Dormitory type residence, other
03 Mar 2015
Carbon monoxide incident
Property Use —
Multifamily dwellings
09 Nov 2013
Gas leak (natural gas or LPG)
Property Use —
Outside or special property, other
04 Oct 2013
Gasoline or other flammable liquid spill
Property Use —
Street, other
Properties Nearby
| Street Address | Residens/Landlords |
|---|


