94 Greenlawn Ave, Newton MA  02459-1714 exterior

94 Greenlawn Ave Newton, MA 02459 / 1714

Residence for Single Family

(UPDATED: 07/25/2025)
  • 3 Beds
  • 3 Baths
  • 3.733 square feet
Property Report

Information about property on 94 Greenlawn Ave, Newton MA, 02459-1714. Find out owner contacts, building history, price, neighborhood at Homemetry Address Directory.

Property Details

Erected in 1902, this property has more than thirty-seven hundred square feet of effective area.

Facts

  • Built in 1902
  • Property use Single Family
  • Lot size 9,030 sqft
  • Effective area 3,733 sqft
  • Building type Residential
  • Rooms 8
  • Bedrooms 3
  • Stories 2
  • Exterior condition Average
  • Trim None
  • Foundation type Concrete
  • Roof material Asphalt Shingl
  • Fuel type Gas
  • Fireplaces 1
  • Frontage 80 feet
  • Basement area 720 sqft
  • Enclosed porch area 28 sqft
  • Deck area 620 sqft
  • Detached garage area 180 sqft
  • Heating & Cooling
  • Heat type Hot Wtr Radiat
  • Exterior Home Features
  • Exterior walls Wood Shingle
  • Roof type Gambrel

Features

  • Kitchen quality: Above Average
  • Interior condition: Good

Householders and Tenants for 94 Greenlawn Ave, Newton MA

Possible residents contact details

Person Name Phone Number Additional Info
Charles T Dumoulin
Christine M Hayes
617-969-****
Edith E Dumoulin
G Ginsburg
Geoffrey S Ginsburg
Harold A Picken
617-969-****
Howard Z Marshall Age: 72
617-244-****
Residential status:
Homeowner
Job:
Professional/Technical
Katherine S Ginsburg
L Grillo
617-332-****
Leanne A Grillo Age: 68
617-244-****
Residential status:
Homeowner
Job:
Professional/Technical
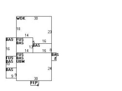
94 Greenlawn Ave, Newton MA  02459-1714 plot plan 94 Greenlawn Ave, Newton MA  02459-1714 floor plan 94 Greenlawn Ave, Newton MA  02459-1714 aerial view

Purchase History

DateEventPriceSourceAgents
07/30/1998 Sold $512,000 Public records
06/20/1995 Sold $427,875 Public records

Cost estimate history

YearAssessment
2016 $999,100
2015 $933,700
2014 $886,200
2013 $886,200
2012 $886,200
2011 $878,300
2010 $896,200
2009 $914,500
2008 $914,500
2007 $937,900
2006$910,600
2005$867,200
2004$804,700
2003$641,000
2002$641,000
2001$547,500
2000$493,100
1999$448,700
1998$386,300
1997$354,400
1996$337,500
1995$298,700
1994$298,700
1993$298,700
1992$266,600

Where is 94 Greenlawn Ave, Newton MA located on map?

Properties Nearby

Street AddressResidens/Landlords
Anne M Rich
 

FAQ about the house at 94 Greenlawn Ave, Newton, MA


NOTICE: You may not use RadioAwards or the information it provides to make decisions about employment, credit, housing or any other purpose that would require Fair Credit Reporting Act (FCRA) compliance. RadioAwards is not a Consumer Reporting Agency (CRA) as defined by the FCRA and does not provide consumer reports.