91 Greenlawn Ave, Newton MA  02459-1712 exterior

91 Greenlawn Ave Newton, MA 02459 / 1712

Residence for Single Family

(UPDATED: 09/18/2025)
  • 3 Beds
  • 1 Baths
  • 2.561 square feet
Property Report

Information about property on 91 Greenlawn Ave, Newton MA, 02459-1712. Find out owner contacts, building history, price, neighborhood at Homemetry Address Directory.

Property Details

This property with near twenty-six hundred square feet of effective area on 0,2 acres was built in 1930.

Facts

  • Built in 1930
  • Property use Single Family
  • Lot size 8,833 sqft
  • Effective area 2,561 sqft
  • Building type Residential
  • Rooms 7
  • Bedrooms 3
  • Stories 2
  • Exterior condition Average
  • Trim None
  • Foundation type Brick/Fldstone
  • Roof material Asphalt Shingl
  • Fuel type Gas
  • Frontage 78 feet
  • Basement area 898 sqft
  • Enclosed porch area 52 sqft
  • Detached garage area 209 sqft
  • Heating & Cooling
  • Heat type Hot Wtr Radiat
  • Exterior Home Features
  • Exterior walls Vinyl Siding
  • Roof type Gambrel

Features

  • Bath quality: Below Average

Householders and Tenants for 91 Greenlawn Ave, Newton MA

Possible residents contact details

Person Name Phone Number Additional Info
Dorothy Branagan
Residential status:
Homeowner
Job:
Homemaker
Katherine N Branagan Age: 43
781-939-****
Martin L Glazer Age: 74
617-767-****
Residential status:
Homeowner
Job:
Professional/Technical
Rachael A Selikoff
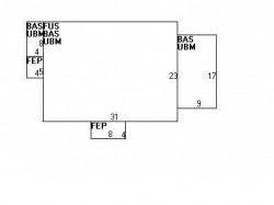
91 Greenlawn Ave, Newton MA  02459-1712 plot plan 91 Greenlawn Ave, Newton MA  02459-1712 floor plan 91 Greenlawn Ave, Newton MA  02459-1712 aerial view

Cost estimate history

YearAssessment
2016 $673,500
2015 $629,400
2014 $599,000
2013 $599,000
2012 $599,000
2011 $597,900
2010 $610,100
2009 $622,600
2008 $622,600
2007 $648,500
2006$629,600
2005$599,600
2004$549,500
2003$490,600
2002$490,600
2001$412,800
2000$377,000
1999$343,000
1998$310,500
1997$284,900
1996$271,300
1995$264,900
1994$264,900
1993$264,900
1992$275,200

Where is 91 Greenlawn Ave, Newton MA located on map?

Building Permits

To date, we have no information about building permits in 2025
Sep 30, 2015
Description: (25) replacement windows
  • Valuation: $950,900
  • Fee: $190.18 paid to City of Newton, Massachusetts
  • Parcel #: 64017 0023
  • Permit #: 15091077

Properties Nearby

Street AddressResidens/Landlords
Anne M Rich
 

FAQ about the house at 91 Greenlawn Ave, Newton, MA


NOTICE: You may not use RadioAwards or the information it provides to make decisions about employment, credit, housing or any other purpose that would require Fair Credit Reporting Act (FCRA) compliance. RadioAwards is not a Consumer Reporting Agency (CRA) as defined by the FCRA and does not provide consumer reports.