9 Mosman St, Newton MA  02465-1303 exterior

9 Mosman St Newton, MA 02465 / 1303

Residence for Single Family

(UPDATED: 09/27/2025)
  • 3 Beds
  • 1 Baths
  • 1.750 square feet
Property Report

Information about property on 9 Mosman St, Newton MA, 02465-1303. Find out owner contacts, building history, price, neighborhood at Homemetry Address Directory.

Property Details

As is shown in our records this property is situated at 9 Mosman Street, Newton, MA.

Facts

  • Built in 1953
  • Property use Single Family
  • Lot size 9,400 sqft
  • Effective area 1,750 sqft
  • Building type Residential
  • Rooms 7
  • Bedrooms 2
  • Stories 1
  • Exterior condition Average
  • Trim Half Wall
  • Foundation type Slab
  • Roof material Asphalt Shingl
  • Fuel type Oil
  • Air conditioning Central
  • Frontage 78 feet
  • Shed area 35 sqft
  • Porch area 168 sqft
  • Heating & Cooling
  • Heat type Hot Water
  • Exterior Home Features
  • Exterior walls Vinyl Siding
  • Roof type Gable

Householders and Tenants for 9 Mosman St, Newton MA

Possible residents contact details

Person Name Phone Number Additional Info
Eileen H Garber Age: 99
617-244-****
Erin L Blanchfield Age: 46
Residential status:
Homeowner
Kenneth Leeser
Nancy Garber
617-332-****
Robert L Garber Age: 100
617-244-****
Robt Garber
617-332-****
William E Blanchfield

Possible Businesses

Organization Phone Number Additional Info
ROBEEN SALES CORP
Type of Business:
Domestic Profit Corporation
Inactive:
19950316
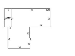
9 Mosman St, Newton MA  02465-1303 plot plan 9 Mosman St, Newton MA  02465-1303 floor plan 9 Mosman St, Newton MA  02465-1303 aerial view

Purchase History

DateEventPriceSourceAgents
08/01/2008 Sold $461,800 Public records

Cost estimate history

YearAssessment
2016 $519,800
2015 $485,800
2014 $456,700
2013 $456,700
2012 $456,700
2011 $455,000
2010 $464,300
2009 $473,800
2008 $537,000
2007 $538,500
2006$522,800
2005$497,900
2004$456,800
2003$407,900
2002$407,900
2001$330,800
2000$302,100
1999$274,900
1998$230,400
1997$217,400
1996$207,000
1995$197,000
1994$197,000
1993$197,000
1992$209,300

Where is 9 Mosman St, Newton MA located on map?

Properties Nearby

Street AddressResidens/Landlords
 

FAQ about the house at 9 Mosman St, Newton, MA


NOTICE: You may not use RadioAwards or the information it provides to make decisions about employment, credit, housing or any other purpose that would require Fair Credit Reporting Act (FCRA) compliance. RadioAwards is not a Consumer Reporting Agency (CRA) as defined by the FCRA and does not provide consumer reports.