88 Brackett Rd, Newton MA  02458-2614 exterior

88 Brackett Rd Newton, MA 02458 / 2614

Residence for Single Family

(UPDATED: 07/17/2025)
  • 3 Beds
  • 2 Baths
  • 3.637 square feet
Property Report

Information about property on 88 Brackett Rd, Newton MA, 02458-2614. Find out owner contacts, building history, price, neighborhood at Homemetry Address Directory.

Property Details

This property has approximately thirty-six hundred square feet of effective area and sits on 0,19 acres.

Facts

  • Built in 1930
  • Property use Single Family
  • Lot size 8,394 sqft
  • Effective area 3,562 sqft
  • Gross building area 3,637 sqft
  • Building type Residential
  • Rooms 8
  • Bedrooms 3
  • Stories 2
  • Exterior condition Average
  • Trim None
  • Foundation type Concrete
  • Roof material Asphalt Shingl
  • Fuel type Gas
  • Air conditioning Central
  • Frontage 85 feet
  • Basement area 1,247 sqft
  • Heating & Cooling
  • Heat type Hot Water
  • Exterior Home Features
  • Exterior walls Brick Veneer
  • Roof type Gable

Householders and Tenants for 88 Brackett Rd, Newton MA

Possible residents contact details

Person Name Phone Number Additional Info
Abigail S Rischin Age: 61
617-763-****
Residential status:
Homeowner
Job:
Service Occupations
Abigal S Rischin Age: 61
617-332-****
Barbara A Ziskend
Barbara Mass
David C Moss Age: 61
617-332-****
Residential status:
Homeowner
Eric S Ziskend

Businesses

Organization Phone Number Additional Info
STEP INTO ART, INC
Industry:
Business Services at Non-Commercial Site
Type of Business:
Nonprofit Corporation
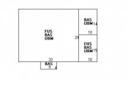
88 Brackett Rd, Newton MA  02458-2614 plot plan 88 Brackett Rd, Newton MA  02458-2614 floor plan 88 Brackett Rd, Newton MA  02458-2614 aerial view

Purchase History

DateEventPriceSourceAgents
08/02/1996 Sold $496,000 Public records

Cost estimate history

YearAssessment
2016 $852,700
2015 $796,900
2014 $760,200
2013 $760,200
2012 $868,000
2011 $860,800
2010 $878,400
2009 $896,300
2008 $896,300
2007 $927,300
2006$900,300
2005$857,400
2004$799,100
2003$713,500
2002$713,500
2001$597,700
2000$545,800
1999$496,600
1998$418,900
1997$410,700
1996$391,100
1995$349,400
1994$326,500
1993$326,500
1992$332,200

Where is 88 Brackett Rd, Newton MA located on map?

Brackett Rd Incidents registered in FEMA
(Federal Emergency Management Agency)

To date, we have no information about incidents registered in FEMA in 2025
14 Jan 2008 Electrical wiring/equipment problem, other
Property Use —
Residential street, road or residential driveway

Properties Nearby

Street AddressResidens/Landlords
8 Brackett Rd, Newton, MA 02458-2612
  • 7 beds
  • 9 baths
  • 8,309 sqft
 

FAQ about the house at 88 Brackett Rd, Newton, MA


NOTICE: You may not use RadioAwards or the information it provides to make decisions about employment, credit, housing or any other purpose that would require Fair Credit Reporting Act (FCRA) compliance. RadioAwards is not a Consumer Reporting Agency (CRA) as defined by the FCRA and does not provide consumer reports.