80 Eliot Ave Newton, MA 02465 / 1711

Residence for Single Family

(UPDATED: 08/18/2025)
  • 3 Beds
  • 2 Baths
  • 2.593 square feet
Sold Feb 2022
$850,000
Property Report

Information about property on 80 Eliot Ave, Newton MA, 02465-1711. Find out owner contacts, building history, price, neighborhood at Homemetry Address Directory.

Property Details

At 80 Eliot Avenue, Newton, Massachusetts there is a single-family property.

Facts

  • Built in 1924
  • Property use Single Family
  • Lot size 6,000 sqft
  • Effective area 2,140 sqft
  • Gross building area 2,593 sqft
  • Building type Residential
  • Rooms 8
  • Bedrooms 3
  • Stories 2
  • Exterior condition Average
  • Trim None
  • Foundation type Concrete
  • Roof material Asphalt Shingl
  • Fuel type Oil
  • Frontage 75 feet
  • Basement area 912 sqft
  • Finished basement area 223 sqft
  • Porch area 25 sqft
  • Swimming pool AVG INGRND
  • Deck area 112 sqft
  • Heating & Cooling
  • Heat type Steam
  • Exterior Home Features
  • Exterior walls Wood Shingle
  • Roof type Hip

Features

  • Kitchen quality: Above Average
  • Bath quality: Below Average

Householders and Tenants for 80 Eliot Ave, Newton MA

Possible residents contact details

Person Name Phone Number Additional Info
Alice P Young Age: 93
617-244-****
Residential status:
Homeowner
Job:
Retired
Francis M Young Age: 96
617-244-****
Residential status:
Homeowner
Frank M Young Age: 96
617-244-****
Residential status:
Homeowner
Job:
Retired
Judith Young
Kenneth R Young
Mary M Benson
Mary M Mullen Age: 117
Michael D Young Age: 63
617-244-****
Residential status:
Homeowner
Job:
Professional/Technical
Patricia Weaver
YOUNG ALICE P LIFE EST
YOUNG FRANCIS M LIFE EST
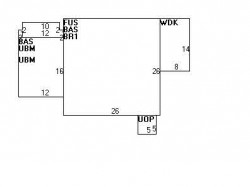
80 Eliot Ave, Newton MA  02465-1711 plot plan 80 Eliot Ave, Newton MA  02465-1711 floor plan 80 Eliot Ave, Newton MA  02465-1711 aerial view

Cost estimate history

YearAssessment
2016 $602,000
2015 $562,600
2014 $537,500
2013 $537,500
2012 $537,500
2011 $531,900
2010 $542,800
2009 $553,900
2008 $553,900
2007 $578,300
2006$561,500
2005$534,800
2004$488,000
2003$435,700
2002$435,700
2001$377,700
2000$344,900
1999$313,800
1998$287,800
1997$271,500
1996$258,600
1995$207,800
1994$203,700
1993$203,700
1992$218,400

Where is 80 Eliot Ave, Newton MA located on map?

Market Activities

To date, we have no information about market activities in 2025
Feb 2022 Sold
80 Eliot Ave
Price history :
  • Single Family
  • 2,000 sqft
  • 3 beds
  • 2 baths
Jul 2021 Sold
80 Eliot Ave
Price history :
  • Single Family
  • 2,000 sqft
  • 3 beds
  • 2 baths
Jun 2021 Sold
80 Eliot Ave
Price history :
  • Single Family
  • 2,000 sqft
  • 3 beds
  • 2 baths
Jun 2021 Sold
80 Eliot Ave
Price history :
  • Single Family
  • 2,000 sqft
  • 3 beds
  • 2 baths

View more

Eliot Ave Incidents registered in FEMA
(Federal Emergency Management Agency)

To date, we have no information about incidents registered in FEMA in 2025
22 Jul 2008 Arcing, shorted electrical equipment
Property Use —
Residential street, road or residential driveway

Properties Nearby

Street AddressResidens/Landlords
 

FAQ about the house at 80 Eliot Ave, Newton, MA


NOTICE: You may not use RadioAwards or the information it provides to make decisions about employment, credit, housing or any other purpose that would require Fair Credit Reporting Act (FCRA) compliance. RadioAwards is not a Consumer Reporting Agency (CRA) as defined by the FCRA and does not provide consumer reports.