8 Deforest Rd, Newton MA  02462-1111 exterior

8 Deforest Rd Newton, MA 02462 / 1111

Residence for Single Family

(UPDATED: 08/26/2025)
  • 2 Beds
  • 2 Baths
  • 2.907 square feet
Property Report

Information about property on 8 Deforest Rd, Newton MA, 02462-1111. Find out owner contacts, building history, price, neighborhood at Homemetry Address Directory.

Property Details

This property has approximately twenty-six hundred square feet of effective area and sits on 0,18 acres.

Facts

  • Built in 1955
  • Property use Single Family
  • Lot size 7,914 sqft
  • Effective area 2,576 sqft
  • Gross building area 2,907 sqft
  • Building type Residential
  • Rooms 6
  • Bedrooms 2
  • Stories 1,75
  • Exterior condition Average
  • Trim None
  • Foundation type Concrete
  • Roof material Asphalt Shingl
  • Fuel type Oil
  • Fireplaces 1
  • Frontage 77 feet
  • Basement area 936 sqft
  • Shed area 80 sqft
  • Enclosed porch area 99 sqft
  • Heating & Cooling
  • Heat type Hot Water
  • Exterior Home Features
  • Exterior walls Vinyl Siding
  • Roof type Gable

Features

  • Interior condition: Good

Householders and Tenants for 8 Deforest Rd, Newton MA

Possible residents contact details

Person Name Phone Number Additional Info
Christine W Choate
Hui Lee
Residential status:
Renter
Job:
Production Occupations
Rita D Henry
Robert B Choate
Wee L Ooi Age: 72
617-527-****
Residential status:
Homeowner
Job:
Professional/Technical
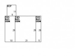
8 Deforest Rd, Newton MA  02462-1111 plot plan 8 Deforest Rd, Newton MA  02462-1111 floor plan 8 Deforest Rd, Newton MA  02462-1111 aerial view

Purchase History

DateEventPriceSourceAgents
04/02/1992 Sold $198,400 Public records

Cost estimate history

YearAssessment
2016 $463,700
2015 $433,400
2014 $413,900
2013 $413,900
2012 $413,900
2011 $414,300
2010 $422,800
2009 $431,400
2008 $431,400
2007 $404,300
2006$392,500
2005$366,800
2004$349,200
2003$311,800
2002$311,800
2001$267,000
2000$243,800
1999$221,800
1998$212,100
1997$200,100
1996$190,600
1995$192,000
1994$192,000
1993$192,000
1992$198,800

Where is 8 Deforest Rd, Newton MA located on map?

Properties Nearby

Street AddressResidens/Landlords
5 Deforest Rd, Newton, MA 02462-1110
Single Family
  • 3 beds
  • 3 baths
  • 3,492 sqft
  • Built in 1989
Ronit A Inbar, Michael Inbar
 

FAQ about the house at 8 Deforest Rd, Newton, MA


NOTICE: You may not use RadioAwards or the information it provides to make decisions about employment, credit, housing or any other purpose that would require Fair Credit Reporting Act (FCRA) compliance. RadioAwards is not a Consumer Reporting Agency (CRA) as defined by the FCRA and does not provide consumer reports.