8 Curve St, Newton MA  02465-2207 exterior

8 Curve St Newton, MA 02465 / 2207

Residence for Single Family

(UPDATED: 07/25/2025)
  • 3 Beds
  • 1 Baths
  • 2.290 square feet
Property Report

Information about property on 8 Curve St, Newton MA, 02465-2207. Find out owner contacts, building history, price, neighborhood at Homemetry Address Directory.

Property Details

This property has approximately two thousand square feet of effective area and sits on 0,08 acres.

Facts

  • Built in 1900
  • Property use Single Family
  • Lot size 3,379 sqft
  • Effective area 2,024 sqft
  • Gross building area 2,290 sqft
  • Building type Residential
  • Rooms 6
  • Bedrooms 3
  • Stories 2
  • Exterior condition Average
  • Trim None
  • Foundation type Brick/Fldstone
  • Roof material Asphalt Shingl
  • Fuel type Oil
  • Frontage 45 feet
  • Unfinished attic area 266 sqft
  • Basement area 532 sqft
  • Porch area 50 sqft
  • Enclosed porch area 77 sqft
  • Heating & Cooling
  • Heat type Hot Wtr Radiat
  • Exterior Home Features
  • Exterior walls Vinyl Siding
  • Roof type Gable

Features

  • Kitchen quality: Above Average
  • Interior condition: Good

Householders and Tenants for 8 Curve St, Newton MA

Possible residents contact details

Person Name Phone Number Additional Info
8 CURVE STREET REALTY TRUST /S TRS
Gladys Carter Age: 86
Residential status:
Homeowner
Job:
Farming-Forestry Occupation
Jr Oscar Carter
617-969-****
Mary A Price
Mattie R Moreland
Oscar J Carter Age: 89
617-969-****
Residential status:
Homeowner
Job:
Farming-Forestry Occupation
PRICE WILLIAM A AL TRS
Patricia Carter Age: 57
617-969-****
Residential status:
Homeowner
Job:
Farming-Forestry Occupation
Sletha Carter Age: 111
617-969-****
William B Price
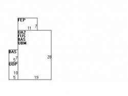
8 Curve St, Newton MA  02465-2207 plot plan 8 Curve St, Newton MA  02465-2207 floor plan 8 Curve St, Newton MA  02465-2207 aerial view

Cost estimate history

YearAssessment
2016 $342,000
2015 $319,600
2014 $304,200
2013 $304,200
2012 $304,200
2011 $298,000
2010 $304,100
2009 $310,300
2008 $310,300
2007 $316,500
2006$307,300
2005$292,700
2004$270,600
2003$241,600
2002$241,600
2001$197,000
2000$179,900
1999$163,700
1998$132,600
1997$128,100
1996$122,000
1995$120,700
1994$120,700
1993$120,700
1992$129,200

Where is 8 Curve St, Newton MA located on map?

Properties Nearby

Street AddressResidens/Landlords
9 Curve St, Newton, MA 02465-2206
Single Family
  • 3 beds
  • 1.5 baths
  • 2,268 sqft
  • Built in 1920
Mohammad Alam, SAEED SANJEDDA &AL TRS &AL
 

FAQ about the house at 8 Curve St, Newton, MA


NOTICE: You may not use RadioAwards or the information it provides to make decisions about employment, credit, housing or any other purpose that would require Fair Credit Reporting Act (FCRA) compliance. RadioAwards is not a Consumer Reporting Agency (CRA) as defined by the FCRA and does not provide consumer reports.