72 Winchester St, Newton MA  02461-1720 exterior

72 Winchester St Newton, MA 02461 / 1720

Arklay Richards
Property Report

Information about property on 72 Winchester St, Newton MA, 02461-1720. Find out owner contacts, building history, price, neighborhood at Homemetry Address Directory.

Property Details

A property at 72 Winchester Street, Newton, Massachusetts.

Facts

  • Built in 1969
  • Property use Manufacturing Operations
  • Lot size 12,222 sqft
  • Effective area 9,119 sqft
  • Gross building area 9,592 sqft
  • Building type Commercial
  • Rooms 2
  • Fuel type Typical
  • Air conditioning Unit/AC
  • Frontage 57 feet
  • Heating & Cooling
  • Heat type Forced Air-Duc

Householders and Tenants for 72 Winchester St, Newton MA

Businesses

Organization Phone Number Additional Info
Arklay Richards & CO Inc
617-527-****
617-964-****
Industry:
Automatic Environmental Control Mfg
SIC:
3822 - Automatic Controls for Regulating Residential and Commercial Environments and Appliances
Site:
asrichards.com
Arklay S. Richards Co., Inc.
617-527-****
Specialties:
Industrial SensorsPyrometer TipsThermocouplesThermocouple WireThermowellsControllersThermometersRTD'sTransmittersHeater WireWind SensorsAnemometersWind Direction VanesData Logg...
Industry:
Electrical/electronic Manufacturing
Type of Business:
Domestic Profit Corporation
SIC:
5251 - Hardware Stores
Site:
asrichards.com
Accounts Payable
617-527-****
Organization:
Arklay S. Richards Co., Inc.
Title:
Administrator
Richards Arklay & Co Inc
617-527-****
Categories:
Thermocouples
Site:
asrichards.com
Richards, Arklay S Co Inc
617-527-****
Categories:
Thermocouples
Industry:
Mfg Process Control Instruments
Site:
asrichards.com
L Richards
617-527-****
617-964-****
Organization:
Arklay Richards & CO Inc
Title:
President
Industry:
Automatic Environmental Control Mfg
Site:
asrichards.com
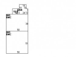
72 Winchester St, Newton MA  02461-1720 plot plan 72 Winchester St, Newton MA  02461-1720 floor plan 72 Winchester St, Newton MA  02461-1720 aerial view

Cost estimate history

YearAssessment
2016 $763,500
2015 $763,500
2014 $744,200
2013 $775,600
2012 $775,600
2011 $806,800
2010 $806,800
2009 $806,800
2008 $806,800
2007 $769,400
2006$769,400
2005$729,400
2004$614,000
2003$614,000
2002$614,000
2001$538,900
2000$538,900
1999$523,200
1998$468,200
1997$468,200
1996$468,200
1995$468,200
1994$468,200
1993$468,200
1992$680,700

Where is 72 Winchester St, Newton MA located on map?

Winchester St Fire Incident History

To date, we have no information about fire incidents in 2025
31 Oct 2010 Brush, or brush and grass mixture fire
Property Use —
Residential street, road or residential driveway
First Ignition —
Item First Ignited, Other
16 May 2008 Outside rubbish, trash or waste fire
Property Use —
Vehicle parking area
Area of Origin —
Vehicle area, other
First Ignition —
Rubbish, trash, or waste

Winchester St Incidents registered in FEMA
(Federal Emergency Management Agency)

To date, we have no information about incidents registered in FEMA in 2025
25 Sep 2013 Vehicle accident, general cleanup
Property Use —
Street or road in commercial area
04 May 2013 Vehicle accident, general cleanup
Property Use —
Street or road in commercial area
14 Mar 2012 Gas leak (natural gas or LPG)
Property Use —
Street or road in commercial area
15 Oct 2010 Hazardous condition, other
Property Use —
Clinics, Doctors offices, hemodialysis centers

View more

Properties Nearby

Street AddressResidens/Landlords
50 Winchester St, Newton, MA 02461-1720
Small Retail Store (Under 10K Sq. Ft.)
  • 20,541 sqft
  • Built in 1988
Bruno Tr Difazio, BRUNO DIFAZIO TRUST
56 Winchester St, Newton, MA 02461-1720
Small Retail Store (Under 10K Sq. Ft.)
  • 1 bath
  • 16,296 sqft
  • Built in 1986
Bruno Difazio, BRUNO'S AUTO SERVICE,INC
66 Winchester St, Newton, MA 02461-1720
Small Retail Store (Under 10K Sq. Ft.)
  • 47,817 sqft
  • Built in 1953
WINCHESTER 66, LLC, Boston Showcase Company Inc
78 Winchester St, Newton, MA 02461-1720
Car Repair Facility
  • Lot: 8,148 sqft
  • Built in 1940
WINCHESTER STREET TRUST /S TR, Charles Tr Kalivas
82 Winchester St, Newton, MA 02461-1720
General Office Bldg.
  • 3 baths
  • 17,120 sqft
  • Built in 1940
BUTLER ASSOCIATES,INC, BUTLER LEASING CORPORATION
88 Winchester St, Newton, MA 02461-1720
Parking Lots
  • Lot: 6,300 sqft
The American Liver Foundation, Wendy Lennon
90 Winchester St, Newton, MA 02461-1720
Car Repair Facility
  • 3,486 sqft
  • Built in 1994
NEEDHAM INVESTMENT CO LLC, Matthew D Borrelli
130 Winchester St, Newton, MA 02461-2130
Single Family
  • 2 beds
  • 1.5 baths
  • 2,220 sqft
  • Built in 1940
G J Lanman, Gertrude J Lanman
 

FAQ about the house at 72 Winchester St, Newton, MA


NOTICE: You may not use RadioAwards or the information it provides to make decisions about employment, credit, housing or any other purpose that would require Fair Credit Reporting Act (FCRA) compliance. RadioAwards is not a Consumer Reporting Agency (CRA) as defined by the FCRA and does not provide consumer reports.