71 Greenlawn Ave, Newton MA  02459-1712 exterior

71 Greenlawn Ave Newton, MA 02459 / 1712

Residence for Single Family

(UPDATED: 09/16/2025)
  • 4 Beds
  • 3 Baths
  • 4.866 square feet
Property Report

Information about property on 71 Greenlawn Ave, Newton MA, 02459-1712. Find out owner contacts, building history, price, neighborhood at Homemetry Address Directory.

Property Details

At 71 Greenlawn Avenue, Newton, MA stands a property, which was built in 1930.

Facts

  • Built in 1930
  • Property use Single Family
  • Lot size 7,530 sqft
  • Effective area 4,026 sqft
  • Gross building area 4,866 sqft
  • Building type Residential
  • Rooms 9
  • Bedrooms 3
  • Stories 2
  • Exterior condition Average
  • Trim Half Wall
  • Foundation type Conc Block
  • Roof material Asphalt Shingl
  • Fuel type Gas
  • Air conditioning None
  • Frontage 73 feet
  • Unfinished attic area 875 sqft
  • Basement area 1,081 sqft
  • Finished basement area 219 sqft
  • Shed area 48 sqft
  • Enclosed porch area 64 sqft
  • Deck area 152 sqft
  • Attached garage area 342 sqft
  • Heating & Cooling
  • Heat type Hot Wtr Radiat
  • Exterior Home Features
  • Exterior walls Wood Shingle
  • Roof type Gable

Features

  • Kitchen quality: Below Average

Householders and Tenants for 71 Greenlawn Ave, Newton MA

Possible residents contact details

Person Name Phone Number Additional Info
Arthur Rosenberg
Barbara O Epstein Age: 105
410-467-****
Celia K Rosenberg
EPSTEIN HENRY D EST
HENRY D EPSTEIN REVOCABLE TRUST
Henry D Epstein
617-332-****
Leonora A Epstein Age: 72
410-467-****
Residential status:
Homeowner
Job:
Building and Grounds Cleaning and Maintenance Occupations
Martha E Pierce
Martin S Wigler Age: 81
Residential status:
Homeowner
Norrie Epstein
410-467-****
Stephen Wigler Age: 81
Job:
Medical Professional
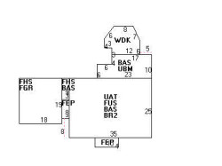
71 Greenlawn Ave, Newton MA  02459-1712 plot plan 71 Greenlawn Ave, Newton MA  02459-1712 floor plan 71 Greenlawn Ave, Newton MA  02459-1712 aerial view

Cost estimate history

YearAssessment
2016 $763,000
2015 $713,100
2014 $681,100
2013 $681,100
2012 $681,100
2011 $681,300
2010 $743,400
2009 $758,600
2008 $758,600
2007 $822,900
2006$798,900
2005$760,900
2004$702,000
2003$626,800
2002$626,800
2001$521,500
2000$476,300
1999$433,400
1998$402,800
1997$369,500
1996$351,900
1995$340,100
1994$323,900
1993$323,900
1992$336,000

Where is 71 Greenlawn Ave, Newton MA located on map?

Properties Nearby

Street AddressResidens/Landlords
 

FAQ about the house at 71 Greenlawn Ave, Newton, MA


NOTICE: You may not use RadioAwards or the information it provides to make decisions about employment, credit, housing or any other purpose that would require Fair Credit Reporting Act (FCRA) compliance. RadioAwards is not a Consumer Reporting Agency (CRA) as defined by the FCRA and does not provide consumer reports.