7 Tocci Path, Newton MA  02459-3718 exterior

7 Tocci Path Newton, MA 02459 / 3718

Residence for Single Family

(UPDATED: 07/24/2025)
  • 5 Beds
  • 2 Baths
  • 1.988 square feet
Property Report

Information about property on 7 Tocci Path, Newton MA, 02459-3718. Find out owner contacts, building history, price, neighborhood at Homemetry Address Directory.

Property Details

Originally built in the forties, this property has more than nineteen hundred square feet of effective area and sits on 0,17 acres.

Facts

  • Built in 1947
  • Property use Single Family
  • Lot size 7,266 sqft
  • Effective area 1,988 sqft
  • Building type Residential
  • Rooms 7
  • Bedrooms 5
  • Bathrooms 2
  • Stories 2
  • Exterior condition Average
  • Trim None
  • Foundation type Slab
  • Roof material Asphalt Shingl
  • Fuel type Gas
  • Air conditioning Central
  • Frontage 130 feet
  • Shed area 48 sqft
  • Enclosed porch area 36 sqft
  • Heating & Cooling
  • Heat type Hot Water
  • Exterior Home Features
  • Exterior walls Vinyl Siding
  • Roof type Gable

Features

  • Bath quality: Above Average

Householders and Tenants for 7 Tocci Path, Newton MA

Possible residents contact details

Person Name Phone Number Additional Info
7 TOCCI PATH NOMINEE TRUST /S TRS
Bernard H Kadetsky Age: 97
617-332-****
Chun Zeng
617-332-****
Chunxun Zeng Age: 63
617-332-****
Residential status:
Homeowner
Job:
Professional/Technical
Fabio Fonti
617-497-****
SENG CHUN XUN &UX
Sylvia C Kadetsky Age: 97
617-332-****
WEI WAN JIANG &AL
Wanjiang Wei Age: 62
Xun S Chun
Residential status:
Homeowner
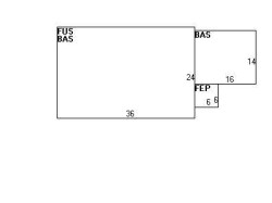
7 Tocci Path, Newton MA  02459-3718 plot plan 7 Tocci Path, Newton MA  02459-3718 floor plan 7 Tocci Path, Newton MA  02459-3718 aerial view

Purchase History

DateEventPriceSourceAgents
08/30/2000 Sold $266,000 Public records

Cost estimate history

YearAssessment
2016 $469,100
2015 $438,400
2014 $421,100
2013 $421,100
2012 $421,100
2011 $423,100
2010 $431,700
2009 $440,500
2008 $440,500
2007 $497,700
2006$483,200
2005$348,400
2004$270,300
2003$241,300
2002$240,600
2001$229,300
2000$209,400
1999$190,500
1998$191,300
1997$175,500
1996$175,500
1995$150,200
1994$147,300
1993$147,300
1992$162,300

Where is 7 Tocci Path, Newton MA located on map?

Properties Nearby

Street Address Residens/Landlords
8 Tocci Path, Newton, MA 02459-3719
Single Family
  • 4 beds
  • 3 baths
  • 2,735 sqft
  • Built in 1950
Yong Shao, Xiufen Wang
15 Tocci Path, Newton, MA 02459-3718
Single Family
  • 2 beds
  • 1 bath
  • Lot: 7,096 sqft
  • Built in 1950
15 TOCCI PATH REALTY TRUST, PRINCE DONNA PALMER TR
16 Tocci Path, Newton, MA 02459-3719
Single Family
  • 3 beds
  • 3.5 baths
  • 3,128 sqft
  • Built in 1945
Erin M Pappas, Michael J Pappas
21 Tocci Path, Newton, MA 02459-3718
Single Family
  • 3 beds
  • 1 bath
  • Lot: 7,000 sqft
  • Built in 1949
Debra S Arippol, Maurice D Arippol
22 Tocci Path, Newton, MA 02459-3719
Single Family
  • 3 beds
  • 3 baths
  • 2,641 sqft
  • Built in 1947
Jonathan H Neal, Wendy H Neal
Wendy Neal
 

FAQ about the house at 7 Tocci Path, Newton, MA


NOTICE: You may not use RadioAwards or the information it provides to make decisions about employment, credit, housing or any other purpose that would require Fair Credit Reporting Act (FCRA) compliance. RadioAwards is not a Consumer Reporting Agency (CRA) as defined by the FCRA and does not provide consumer reports.