7 Ashcroft Rd Newton, MA 02461 / 1701

Residence for Single Family

(UPDATED: 09/22/2025)
  • 3 Beds
  • 1 Baths
  • 1.924 square feet
Sold Dec 2022
$805,000
Property Report

Information about property on 7 Ashcroft Rd, Newton MA, 02461-1701. Find out owner contacts, building history, price, neighborhood at Homemetry Address Directory.

Property Details

Originally built in the thirties, this property has more than nineteen hundred square feet of effective area and sits on 0,11 acres.

Facts

  • Built in 1930
  • Property use Single Family
  • Lot size 4,923 sqft
  • Effective area 1,924 sqft
  • Building type Residential
  • Rooms 6
  • Bedrooms 3
  • Bathrooms 1
  • Stories 2
  • Exterior condition Average
  • Trim None
  • Foundation type Concrete
  • Roof material Asphalt Shingl
  • Fuel type Gas
  • Frontage 55 feet
  • Basement area 572 sqft
  • Porch area 32 sqft
  • Detached garage area 209 sqft
  • Heating & Cooling
  • Heat type Steam
  • Exterior Home Features
  • Exterior walls Wood Shingle
  • Roof type Gable

Features

  • Kitchen quality: Above Average

Householders and Tenants for 7 Ashcroft Rd, Newton MA

Possible residents contact details

Person Name Phone Number Additional Info
K Moineau
617-928-****
Kathleen D Moineau Age: 63
617-928-****
Leo R Hannenberg Age: 66
617-928-****
Phyllis A Bouzan
Vera L Hannenberg
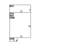
7 Ashcroft Rd, Newton MA  02461-1701 plot plan 7 Ashcroft Rd, Newton MA  02461-1701 floor plan 7 Ashcroft Rd, Newton MA  02461-1701 aerial view

Purchase History

DateEventPriceSourceAgents
09/19/1994 Sold $241,500 Public records

Cost estimate history

YearAssessment
2016 $529,400
2015 $494,800
2014 $472,500
2013 $472,500
2012 $472,500
2011 $470,000
2010 $479,600
2009 $489,400
2008 $489,400
2007 $513,600
2006$498,600
2005$474,900
2004$433,200
2003$386,800
2002$386,800
2001$332,900
2000$304,000
1999$276,600
1998$264,300
1997$249,300
1996$228,900
1995$190,800
1994$190,800
1993$190,800
1992$186,100

Where is 7 Ashcroft Rd, Newton MA located on map?

Market Activities

To date, we have no information about market activities in 2025
Dec 2022 Sold
7 Ashcroft Rd
Price history :
  • Single Family
  • 1,320 sqft
  • 3 beds
  • 2 baths
Nov 2022 Sold
7 Ashcroft Rd
Price history :
  • Single Family
  • 1,320 sqft
  • 3 beds
  • 2 baths

View more

Properties Nearby

Street AddressResidens/Landlords
11 Ashcroft Rd, Newton, MA 02461-1701
Single Family
  • 3 beds
  • 1.5 baths
  • 2,745 sqft
  • Built in 1940
Fred S Weissman, Susan P Weissman
Alexander Rhys Thomas
15 Ashcroft Rd, Newton, MA 02461-1701
Single Family
  • 5 beds
  • 2.5 baths
  • 2,420 sqft
  • Built in 1928
David R Beidler, Devon R Beidler
Kimberly M Scanlon
 

FAQ about the house at 7 Ashcroft Rd, Newton, MA


NOTICE: You may not use RadioAwards or the information it provides to make decisions about employment, credit, housing or any other purpose that would require Fair Credit Reporting Act (FCRA) compliance. RadioAwards is not a Consumer Reporting Agency (CRA) as defined by the FCRA and does not provide consumer reports.