68 Maplewood Ave, Newton MA  02459-2526 exterior

68 Maplewood Ave Newton, MA 02459 / 2526

Residence for Single Family

(UPDATED: 09/01/2025)
  • 3 Beds
  • 1 Baths
  • 3.755 square feet
Property Report

Information about property on 68 Maplewood Ave, Newton MA, 02459-2526. Find out owner contacts, building history, price, neighborhood at Homemetry Address Directory.

Property Details

A single-family estate at 68 Maplewood Avenue, Newton, MA.

Facts

  • Built in 1935
  • Property use Single Family
  • Lot size 5,743 sqft
  • Effective area 3,343 sqft
  • Gross building area 3,755 sqft
  • Building type Residential
  • Rooms 8
  • Bedrooms 3
  • Bathrooms 1
  • Stories 2
  • Exterior condition Average
  • Trim None
  • Foundation type Conc Block
  • Roof material Asphalt Shingl
  • Fuel type Oil
  • Frontage 60 feet
  • Unfinished attic area 413 sqft
  • Basement area 1,012 sqft
  • Porch area 45 sqft
  • Detached garage area 400 sqft
  • Heating & Cooling
  • Heat type Steam
  • Exterior Home Features
  • Exterior walls Brick Veneer
  • Roof type Gable

Features

  • Kitchen quality: Below Average

Householders and Tenants for 68 Maplewood Ave, Newton MA

Possible residents contact details

Person Name Phone Number Additional Info
Gordon Antho Bean Age: 58
Karin Foster
Kun P Lu Age: 61
617-796-****
Kunping Lu Age: 61
LU KUN PING &UX
Lu K Ping
617-243-****
Ping L Kun
617-784-****
Residential status:
Homeowner
Xiao Z Zhon Age: 61
Xiao Zhou
ZHOU XIAO ZHEN &AL
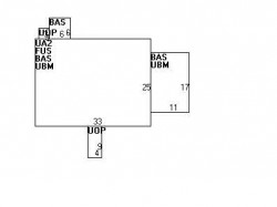
68 Maplewood Ave, Newton MA  02459-2526 plot plan 68 Maplewood Ave, Newton MA  02459-2526 floor plan 68 Maplewood Ave, Newton MA  02459-2526 aerial view

Purchase History

DateEventPriceSourceAgents
04/15/1997 Sold $265,000 Public records

Cost estimate history

YearAssessment
2016 $605,400
2015 $565,800
2014 $540,300
2013 $540,300
2012 $540,300
2011 $536,600
2010 $547,600
2009 $558,800
2008 $558,800
2007 $587,600
2006$570,500
2005$543,300
2004$503,900
2003$449,900
2002$449,900
2001$344,500
2000$314,600
1999$286,300
1998$251,300
1997$274,600
1996$291,700
1995$264,800
1994$252,200
1993$252,200
1992$262,000

Where is 68 Maplewood Ave, Newton MA located on map?

Maplewood Ave Incidents registered in FEMA
(Federal Emergency Management Agency)

To date, we have no information about incidents registered in FEMA in 2025
09 May 2010 Chemical spill or leak
Property Use —
1 or 2 family dwelling

Properties Nearby

Street AddressResidens/Landlords
Elizabeth My Wu
 

FAQ about the house at 68 Maplewood Ave, Newton, MA


NOTICE: You may not use RadioAwards or the information it provides to make decisions about employment, credit, housing or any other purpose that would require Fair Credit Reporting Act (FCRA) compliance. RadioAwards is not a Consumer Reporting Agency (CRA) as defined by the FCRA and does not provide consumer reports.