63 Oakdale Rd Newton, MA 02459 / 2659

Residence for Single Family

(UPDATED: 07/29/2025)
  • 4 Beds
  • 1 Baths
  • 3.162 square feet
Property Report

Information about property on 63 Oakdale Rd, Newton MA, 02459-2659. Find out owner contacts, building history, price, neighborhood at Homemetry Address Directory.

Property Details

This is a single-family possession, which is situated at 63 Oakdale Road, Newton, MA.

Facts

  • Built in 1946
  • Property use Single Family
  • Lot size 4,969 sqft
  • Effective area 2,599 sqft
  • Gross building area 3,162 sqft
  • Building type Residential
  • Rooms 9
  • Bedrooms 4
  • Stories 2
  • Exterior condition Average
  • Trim None
  • Foundation type Concrete
  • Roof material Asphalt Shingl
  • Fuel type Gas
  • Air conditioning Central
  • Frontage 150 feet
  • Unfinished attic area 170 sqft
  • Basement area 840 sqft
  • Finished basement area 277 sqft
  • Porch area 20 sqft
  • Attached garage area 312 sqft
  • Heating & Cooling
  • Heat type Forced Air-Duc
  • Exterior Home Features
  • Exterior walls Wood Shingle
  • Roof type Gable

Features

  • Kitchen quality: Below Average
  • Interior condition: Good

Householders and Tenants for 63 Oakdale Rd, Newton MA

Possible residents contact details

Person Name Phone Number Additional Info
Edward M White Age: 71
617-332-****
Residential status:
Homeowner
Job:
Administrative Support Occupations, Including Clerical Occupations
Ellen B White Age: 72
617-332-****
John S White
Residential status:
Homeowner
Job:
Administrative Support Occupations, Including Clerical Occupations
SELMA WHITE 2013 REVOCABLE TRUST
Selma G White Age: 95
617-332-****
Residential status:
Homeowner
Job:
Retired
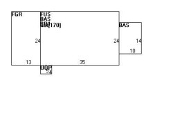
63 Oakdale Rd, Newton MA  02459-2659 plot plan 63 Oakdale Rd, Newton MA  02459-2659 floor plan 63 Oakdale Rd, Newton MA  02459-2659 aerial view

Cost estimate history

YearAssessment
2016 $621,700
2015 $581,000
2014 $552,000
2013 $552,000
2012 $552,000
2011 $548,800
2010 $560,000
2009 $571,400
2008 $571,400
2007 $574,700
2006$558,000
2005$531,400
2004$507,600
2003$453,200
2002$453,200
2001$370,300
2000$338,200
1999$307,700
1998$290,200
1997$273,800
1996$260,800
1995$247,400
1994$223,900
1993$235,700
1992$235,600

Where is 63 Oakdale Rd, Newton MA located on map?

Oakdale Rd Incidents registered in FEMA
(Federal Emergency Management Agency)

To date, we have no information about incidents registered in FEMA in 2025
07 Mar 2007 Hazardous condition, other
Property Use —
Residential street, road or residential driveway

Properties Nearby

Street AddressResidens/Landlords
 

FAQ about the house at 63 Oakdale Rd, Newton, MA


NOTICE: You may not use RadioAwards or the information it provides to make decisions about employment, credit, housing or any other purpose that would require Fair Credit Reporting Act (FCRA) compliance. RadioAwards is not a Consumer Reporting Agency (CRA) as defined by the FCRA and does not provide consumer reports.