62 Stanley Rd Newton, MA 02468 / 2338

Residence for Single Family

(UPDATED: 09/09/2025)
  • 3 Beds
  • 1 Baths
  • 2.420 square feet
Sold Apr 2024
$2,540,000
Property Report

Information about property on 62 Stanley Rd, Newton MA, 02468-2338. Find out owner contacts, building history, price, neighborhood at Homemetry Address Directory.

Property Details

At 62 Stanley Road, Newton, MA there is a single-family possession.

Facts

  • Built in 1950
  • Property use Single Family
  • Lot size 12,750 sqft
  • Effective area 2,018 sqft
  • Gross building area 2,420 sqft
  • Building type Residential
  • Rooms 7
  • Bedrooms 3
  • Stories 1
  • Exterior condition Average
  • Trim Half Wall
  • Foundation type Concrete
  • Roof material Asphalt Shingl
  • Fuel type Gas
  • Air conditioning Unit/AC
  • Frontage 83 feet
  • Basement area 1,140 sqft
  • Finished basement area 402 sqft
  • Shed area 96 sqft
  • Heating & Cooling
  • Heat type Forced Air-Duc
  • Exterior Home Features
  • Exterior walls Vinyl Siding
  • Roof type Hip

Householders and Tenants for 62 Stanley Rd, Newton MA

Possible residents contact details

Person Name Phone Number Additional Info
Gloria S Rosoff
617-332-****
Sumner Rosoff Age: 108
617-320-****
Residential status:
Homeowner
Job:
Healthcare Support Occupations
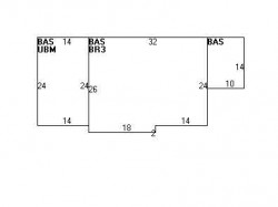
62 Stanley Rd, Newton MA  02468-2338 plot plan 62 Stanley Rd, Newton MA  02468-2338 floor plan 62 Stanley Rd, Newton MA  02468-2338 aerial view

Cost estimate history

YearAssessment
2016 $518,100
2015 $484,200
2014 $463,000
2013 $463,000
2012 $463,000
2011 $465,500
2010 $475,000
2009 $553,100
2008 $553,100
2007 $521,100
2006$505,900
2005$481,800
2004$490,100
2003$437,600
2002$437,600
2001$322,900
2000$294,900
1999$268,200
1998$243,700
1997$243,700
1996$232,100
1995$193,000
1994$193,000
1993$193,000
1992$210,900

Where is 62 Stanley Rd, Newton MA located on map?

Market Activities

To date, we have no information about market activities in 2025
Apr 2024 Sold
62 Stanley Rd
Price history :
  • Single Family
  • 5,480 sqft
  • 6 beds
  • 6 baths
Nov 2023 Sold
62 Stanley Rd
Price history :
  • Single Family
  • 5,480 sqft
  • 6 beds
  • 6 baths
Nov 2023 Sold
62 Stanley Rd
Price history :
  • Single Family
  • 5,480 sqft
  • 6 beds
  • 6 baths
Oct 2023 Sold
62 Stanley Rd
Price history :
  • Single Family
  • 5,480 sqft
  • 6 beds
  • 6 baths
Sep 2023 Sold
62 Stanley Rd
Price history :
  • Single Family
  • 5,480 sqft
  • 6 beds
  • 6 baths
Jun 2022 Sold
62 Stanley Rd
Price history :
  • Single Family
  • 5,480 sqft
  • 6 beds
  • 6 baths

View more

Properties Nearby

Street AddressResidens/Landlords
7 Stanley Rd, Newton, MA 02468-2337
Single Family
  • 3 beds
  • 2.5 baths
  • 5,516 sqft
  • Built in 1900
Marion J Miller, Scott Miller
 

FAQ about the house at 62 Stanley Rd, Newton, MA


NOTICE: You may not use RadioAwards or the information it provides to make decisions about employment, credit, housing or any other purpose that would require Fair Credit Reporting Act (FCRA) compliance. RadioAwards is not a Consumer Reporting Agency (CRA) as defined by the FCRA and does not provide consumer reports.