62 Hinckley Rd, Newton MA  02468-1724 exterior

62 Hinckley Rd Newton, MA 02468 / 1724

Residence for Single Family

(UPDATED: 07/18/2025)
  • 3 Beds
  • 1 Baths
  • 2.423 square feet
Property Report

Information about property on 62 Hinckley Rd, Newton MA, 02468-1724. Find out owner contacts, building history, price, neighborhood at Homemetry Address Directory.

Property Details

At 62 Hinckley Road, Newton, MA there is a single-family possession.

Facts

  • Built in 1944
  • Property use Single Family
  • Lot size 7,920 sqft
  • Effective area 1,973 sqft
  • Gross building area 2,423 sqft
  • Building type Residential
  • Rooms 7
  • Bedrooms 3
  • Bathrooms 1
  • Stories 2
  • Exterior condition Average
  • Trim None
  • Foundation type Concrete
  • Roof material Asphalt Shingl
  • Fuel type Gas
  • Air conditioning Central
  • Frontage 65 feet
  • Basement area 672 sqft
  • Finished basement area 222 sqft
  • Enclosed porch area 104 sqft
  • Attached garage area 200 sqft
  • Heating & Cooling
  • Heat type Forced Air-Duc
  • Exterior Home Features
  • Exterior walls Clapboard
  • Roof type Gable

Features

  • Kitchen quality: Below Average

Householders and Tenants for 62 Hinckley Rd, Newton MA

Possible residents contact details

Person Name Phone Number Additional Info
Amy K Friedman Age: 56
617-962-****
Residential status:
Homeowner
Cole D Barr
617-332-****
FOOTE LOIS WOODWORTH
HENDEL ANN REINKE
Halley S Bolter
Halley S Shefler Age: 70
617-332-****
Residential status:
Homeowner
Job:
Building and Grounds Cleaning and Maintenance Occupations
Harry T Ochs Jr
Janice H Ochs
John P Bergsma
617-969-****
Norman H Bolter
ROSENBERG MARCY BERMAN
Richard Hendel
Robert S Foote
Ronald S Rosenberg
Scott A Friedman Age: 62
617-791-****
Residential status:
Homeowner
Susan L Bergsma
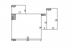
62 Hinckley Rd, Newton MA  02468-1724 plot plan 62 Hinckley Rd, Newton MA  02468-1724 floor plan 62 Hinckley Rd, Newton MA  02468-1724 aerial view

Cost estimate history

YearAssessment
2016 $624,600
2015 $583,700
2014 $555,900
2013 $555,900
2012 $555,900
2011 $550,300
2010 $561,500
2009 $573,000
2008 $573,000
2007 $587,000
2006$569,900
2005$542,800
2004$509,700
2003$455,100
2002$455,100
2001$395,000
2000$360,700
1999$328,200
1998$302,300
1997$277,300
1996$264,100
1995$253,800
1994$239,400
1993$239,400
1992$217,900

Where is 62 Hinckley Rd, Newton MA located on map?

Properties Nearby

Street AddressResidens/Landlords
Robert B Saper, Ruth Paris
 

FAQ about the house at 62 Hinckley Rd, Newton, MA


NOTICE: You may not use RadioAwards or the information it provides to make decisions about employment, credit, housing or any other purpose that would require Fair Credit Reporting Act (FCRA) compliance. RadioAwards is not a Consumer Reporting Agency (CRA) as defined by the FCRA and does not provide consumer reports.