6 Prentice Rd, Newton MA  02459-1343 exterior

6 Prentice Rd Newton, MA 02459 / 1343

Residence for Single Family

(UPDATED: 07/17/2025)
  • 3 Beds
  • 3 Baths
  • 4.319 square feet
Property Report

Information about property on 6 Prentice Rd, Newton MA, 02459-1343. Find out owner contacts, building history, price, neighborhood at Homemetry Address Directory.

Property Details

This property with more than forty-three hundred square feet of effective area was developed in 1930.

Facts

  • Built in 1930
  • Property use Single Family
  • Lot size 10,889 sqft
  • Effective area 4,319 sqft
  • Building type Residential
  • Rooms 8
  • Bedrooms 3
  • Stories 2
  • Exterior condition Fair
  • Trim None
  • Foundation type Concrete
  • Roof material Slate
  • Fuel type Gas
  • Fireplaces 1
  • Frontage 126 feet
  • Basement area 1,287 sqft
  • Enclosed porch area 40 sqft
  • Deck area 209 sqft
  • Detached garage area 400 sqft
  • Heating & Cooling
  • Heat type Steam
  • Exterior Home Features
  • Exterior walls Brick Veneer
  • Roof type Hip

Features

  • Kitchen quality: Above Average
  • Bath quality: Below Average

Householders and Tenants for 6 Prentice Rd, Newton MA

Possible residents contact details

Person Name Phone Number Additional Info
Cleo Karthas Age: 111
617-332-****
Diana Karthas Age: 57
617-332-****
George W Karthas Age: 86
617-332-****
Residential status:
Homeowner
Ilyana Karthas Age: 53
617-332-****
Louella Karthas Age: 89
617-332-****
Residential status:
Homeowner
Rose Ralli
781-237-****

Businesses

Organization Phone Number Additional Info
Diana Music
617-332-****
Categories:
Music Stores
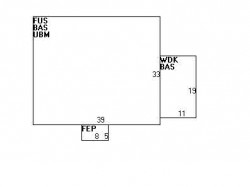
6 Prentice Rd, Newton MA  02459-1343 plot plan 6 Prentice Rd, Newton MA  02459-1343 floor plan 6 Prentice Rd, Newton MA  02459-1343 aerial view

Cost estimate history

YearAssessment
2016 $921,400
2015 $861,100
2014 $833,300
2013 $829,000
2012 $829,000
2011 $832,700
2010 $849,700
2009 $867,000
2008 $867,000
2007 $944,200
2006$916,700
2005$863,300
2004$737,500
2003$658,500
2002$658,500
2001$544,200
2000$497,000
1999$452,200
1998$443,300
1997$430,400
1996$409,900
1995$368,100
1994$368,100
1993$368,100
1992$384,600

Where is 6 Prentice Rd, Newton MA located on map?

Prentice Rd Incidents registered in FEMA
(Federal Emergency Management Agency)

To date, we have no information about incidents registered in FEMA in 2025
21 Jun 2010 Gasoline or other flammable liquid spill
Property Use —
Residential street, road or residential driveway

Properties Nearby

Street AddressResidens/Landlords
Davis DR. Timothy PHD, James T Davis
 

FAQ about the house at 6 Prentice Rd, Newton, MA


NOTICE: You may not use RadioAwards or the information it provides to make decisions about employment, credit, housing or any other purpose that would require Fair Credit Reporting Act (FCRA) compliance. RadioAwards is not a Consumer Reporting Agency (CRA) as defined by the FCRA and does not provide consumer reports.