Cost estimate history
| Year | Assessment | ||
|---|---|---|---|
| 2016 | $525,200 | ||
| 2015 | $490,800 | ||
| 2014 | $469,500 | ||
| 2013 | $469,500 | ||
| 2012 | $469,500 | ||
| 2011 | $473,600 | ||
| 2010 | $483,300 | ||
| 2009 | $506,000 | ||
| 2008 | $506,000 | ||
| 2007 | $519,700 | ||
| 2006 | $504,600 | ||
| 2005 | $480,600 | ||
| 2004 | $447,600 | ||
| 2003 | $399,600 | ||
| 2002 | $399,600 | ||
| 2001 | $340,400 | ||
| 2000 | $310,900 | ||
| 1999 | $282,900 | ||
| 1998 | $262,800 | ||
| 1997 | $262,800 | ||
| 1996 | $250,300 | ||
| 1995 | $223,900 | ||
| 1994 | $219,500 | ||
| 1993 | $219,500 | ||
| 1992 | $244,400 |
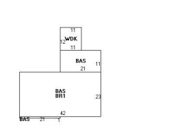
Building Permits
To date, we have no information about building permits in 2025
Jun 4, 2015
Description: Retrofit insulation in walls and attic, airsealing and weatherstripping
- Valuation: $547,600
- Fee: $101.85 paid to City of Newton, Massachusetts
- Parcel #: 54006 0014
- Permit #: 15060246
Properties Nearby
| Street Address | Residens/Landlords | |
|---|---|---|
7 Stanley Rd, Newton, MA 02468-2337 Single Family
|
Marion J Miller, Scott Miller |


