55 Bernard St Newton, MA 02461 / 1935

Residence for Single Family

(UPDATED: 09/04/2025)
  • 4 Beds
  • 2 Baths
  • 2.834 square feet
Sold Mar 2021
$3,000,000
Property Report

Information about property on 55 Bernard St, Newton MA, 02461-1935. Find out owner contacts, building history, price, neighborhood at Homemetry Address Directory.

Property Details

A single-family home at 55 Bernard Street, Newton, MA.

Facts

  • Built in 1986
  • Property use Single Family
  • Lot size 31,500 sqft
  • Effective area 2,834 sqft
  • Building type Residential
  • Rooms 8
  • Bedrooms 4
  • Stories 2
  • Exterior condition Average
  • Trim None
  • Foundation type Concrete
  • Roof material Asphalt Shingl
  • Fuel type Oil
  • Frontage 100 feet
  • Basement area 630 sqft
  • Shed area 144 sqft
  • Deck area 74 sqft
  • Attached garage area 330 sqft
  • Heating & Cooling
  • Heat type Hot Water
  • Exterior Home Features
  • Exterior walls Clapboard
  • Roof type Gable

Features

  • Interior condition: Good

Householders and Tenants for 55 Bernard St, Newton MA

Possible residents contact details

Person Name Phone Number Additional Info
ACOSTA SELENE SORONDO
Alex Minder
617-558-****
Alexander Minder Age: 41
617-558-****
Jefffrey Stookey
617-527-****
Jeffrey Stookey Age: 80
617-244-****
Margaret W Stookey Age: 112
617-244-****
Maria W Stookey Age: 46
617-527-****
Miguel Stookey Age: 41
617-244-****
Selene S Acosta Age: 76
617-244-****
Selene Stookey Age: 76
617-527-****

Possible Businesses

Organization Phone Number Additional Info
VISIONARY INTEGRATION OF THE AMERICAS, INC
Type of Business:
Nonprofit Corporation
Inactive:
20120618
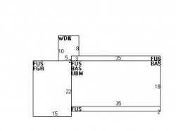
55 Bernard St, Newton MA  02461-1935 plot plan 55 Bernard St, Newton MA  02461-1935 floor plan 55 Bernard St, Newton MA  02461-1935 aerial view

Cost estimate history

YearAssessment
2016 $829,400
2015 $775,100
2014 $728,200
2013 $728,200
2012 $728,200
2011 $740,100
2010 $755,200
2009 $770,600
2008 $770,600
2007 $768,800
2006$746,400
2005$710,900
2004$567,100
2003$506,300
2002$506,300
2001$406,700
2000$371,400
1999$337,900
1998$323,300
1997$310,900
1996$310,900
1995$331,700
1994$318,900
1993$318,900
1992$300,700

Where is 55 Bernard St, Newton MA located on map?

Market Activities

To date, we have no information about market activities in 2025
Mar 2021 Sold
55 Bernard St
Price history :
$3M
  • Single Family
  • 7,000 sqft
  • 6 beds
  • 6 baths

View more

Properties Nearby

Street AddressResidens/Landlords
7 Bernard St, Newton, MA 02461-1903
Single Family
  • 5 beds
  • 5 baths
  • 6,203 sqft
  • Built in 2001
Andrew L Gelfond, Katherine Kotik
44 Bernard St, Newton, MA 02461-1904
Single Family
  • 1 bed
  • 1 bath
  • 1,135 sqft
  • Built in 1924
Iris Gordon, PALMER PAMELA M EST
47 Bernard St, Newton, MA 02461-1935
Single Family
  • 3 beds
  • 3 baths
  • 3,189 sqft
  • Built in 1920
Larry C Miller, Robin M Deutsch
48 Bernard St, Newton, MA 02461-1904
Single Family
  • 3 beds
  • 2 baths
  • 2,758 sqft
  • Built in 1920
Frederick S Sherman, Sarah L Sherman
51 Bernard St, Newton, MA 02461-1935
Single Family
  • 2 beds
  • 1 bath
  • 1,691 sqft
  • Built in 1943
KANE BUILT INC, Daniel K Nauman
52 Bernard St, Newton, MA 02461-1904
Single Family
  • 4 beds
  • 3.5 baths
  • 5,196 sqft
  • Built in 2003
Jianjun Jay Wu, Tao Yang
65 Bernard St, Newton, MA 02461-1935
Rectory/parsonage
  • 4 beds
  • 2 baths
  • 3,616 sqft
  • Built in 1940
CHABAD-LUBAVITCH INC, Charlene M Mccann
66 Bernard St, Newton, MA 02461-1904
Single Family
  • 4 beds
  • 3.5 baths
  • 5,170 sqft
  • Built in 2003
Xueying Y Cao, Joseph Z Tsien
75 Bernard St, Newton, MA 02461-1936
Single Family
  • 3 beds
  • 1.5 baths
  • 2,230 sqft
  • Built in 1957
Debby M Chui, D Chui
78 Bernard St, Newton, MA 02461-1904
Single Family
  • 6 beds
  • 3.5 baths
  • 5,958 sqft
  • Built in 1945
Michael P Borelli, Elaine M Borelli
 

FAQ about the house at 55 Bernard St, Newton, MA


NOTICE: You may not use RadioAwards or the information it provides to make decisions about employment, credit, housing or any other purpose that would require Fair Credit Reporting Act (FCRA) compliance. RadioAwards is not a Consumer Reporting Agency (CRA) as defined by the FCRA and does not provide consumer reports.