548 California St Newton, MA 02460 / 1243

Residence for Single Family

(UPDATED: 08/29/2025)
  • 4 Beds
  • 1 Baths
  • 2.507 square feet
Sold Nov 2023
$1,275,000
Property Report

Information about property on 548 California St, Newton MA, 02460-1243. Find out owner contacts, building history, price, neighborhood at Homemetry Address Directory.

Property Details

Put up in 1910, this property has more than twenty-five hundred square feet of effective area and sits on 0,18 acres.

Facts

  • Built in 1910
  • Property use Single Family
  • Lot size 8,000 sqft
  • Effective area 2,507 sqft
  • Building type Residential
  • Rooms 7
  • Bedrooms 4
  • Bathrooms 1
  • Stories 2
  • Exterior condition Average
  • Trim None
  • Foundation type Concrete
  • Roof material Asphalt Shingl
  • Fuel type Oil
  • Frontage 80 feet
  • Basement area 775 sqft
  • Enclosed porch area 182 sqft
  • Detached garage area 200 sqft
  • Heating & Cooling
  • Heat type Hot Wtr Radiat
  • Exterior Home Features
  • Exterior walls Clapboard
  • Roof type Hip

Features

  • Kitchen quality: Above Average
  • Interior condition: Good

Householders and Tenants for 548 California St, Newton MA

Possible residents contact details

Person Name Phone Number Additional Info
ARPENA A KASABIAN TRUST /S TRS
Annette M Kasabian
Arpena A Kasabian Age: 106
Barbara Douglas
Barbara Douglass Age: 63
617-470-****
Residential status:
Homeowner
Job:
Production Occupations
Domiciles Interiors
617-796-****
E Winterhalter
Elaine M Winterhalter
John F Foley
Jos A Kasabian
Joseph A Kasabian
Marcia J Kasabian
Mary K Foley

Businesses

Organization Phone Number Additional Info
Domiciles Interiors
617-796-****
Categories:
Interior Decorators & Designers
Industry:
Business Services
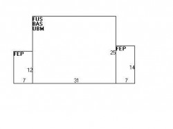
548 California St, Newton MA  02460-1243 plot plan 548 California St, Newton MA  02460-1243 floor plan 548 California St, Newton MA  02460-1243 aerial view

Cost estimate history

YearAssessment
2016 $507,200
2015 $474,000
2014 $448,100
2013 $448,100
2012 $448,100
2011 $442,900
2010 $451,900
2009 $461,100
2008 $461,100
2007 $511,700
2006$496,800
2005$473,100
2004$352,500
2003$314,700
2002$314,700
2001$251,700
2000$229,900
1999$209,200
1998$183,800
1997$183,800
1996$175,000
1995$167,600
1994$174,600
1993$174,600
1992$188,500

Where is 548 California St, Newton MA located on map?

Market Activities

To date, we have no information about market activities in 2025
Nov 2023 Sold
548 California St
Price history :
  • Single Family
  • 1,550 sqft
  • 3 beds
  • 3 baths
Sep 2023 Sold
548 California St
Price history :
  • Single Family
  • 1,550 sqft
  • 3 beds
  • 3 baths

View more

California St Fire Incident History

To date, we have no information about fire incidents in 2025
10 Oct 2010 Passenger vehicle fire
Property Use —
Vehicle parking area
Area of Origin —
Engine area, running gear, wheel area
10 Sep 2010 Building fires
Property Use —
Multifamily dwellings
Area of Origin —
Roof surface: exterior
First Ignition —
Exterior roof covering or finish
Heat Source —
Hot or smoldering object, other
02 May 2010 Brush, or brush and grass mixture fire
Property Use —
1 or 2 family dwelling
Area of Origin —
Wildland, woods
First Ignition —
Light vegetation - not crop, including grass
Heat Source —
Hot or smoldering object, other
01 Mar 2009 Special outside fire, other
Property Use —
1 or 2 family dwelling
Area of Origin —
Courtyard, patio, porch, terrace
First Ignition —
Upholstered sofa, chair, vehicle seats
Heat Source —
Cigarette

View more

California St Incidents registered in FEMA
(Federal Emergency Management Agency)

To date, we have no information about incidents registered in FEMA in 2025
18 Jun 2011 Cooking fire, confined to container
Property Use —
1 or 2 family dwelling
14 Feb 2010 Arcing, shorted electrical equipment
Property Use —
Multifamily dwellings
11 Nov 2007 Dumpster or other outside trash receptacle fire
Property Use —
Vehicle parking area
30 Nov 2006 Arcing, shorted electrical equipment
Property Use —
Radio, television studio

View more

Properties Nearby

Street AddressResidens/Landlords
 

FAQ about the house at 548 California St, Newton, MA


NOTICE: You may not use RadioAwards or the information it provides to make decisions about employment, credit, housing or any other purpose that would require Fair Credit Reporting Act (FCRA) compliance. RadioAwards is not a Consumer Reporting Agency (CRA) as defined by the FCRA and does not provide consumer reports.