54 Garland Rd, Newton MA  02459-1710 exterior

54 Garland Rd Newton, MA 02459 / 1710

Residence for Single Family

(UPDATED: 08/25/2025)
  • 3 Beds
  • 1 Baths
  • 4.502 square feet
Property Report

Information about property on 54 Garland Rd, Newton MA, 02459-1710. Find out owner contacts, building history, price, neighborhood at Homemetry Address Directory.

Property Details

At 54 Garland Road, Newton, MA placed a single-family property.

Facts

  • Built in 1940
  • Property use Single Family
  • Lot size 10,220 sqft
  • Effective area 3,228 sqft
  • Gross building area 4,502 sqft
  • Building type Residential
  • Rooms 6
  • Bedrooms 3
  • Stories 2
  • Exterior condition Average
  • Trim None
  • Foundation type Concrete
  • Roof material Asphalt Shingl
  • Fuel type Gas
  • Frontage 100 feet
  • Finished attic area 213 sqft
  • Basement area 850 sqft
  • Deck area 84 sqft
  • Detached garage area 260 sqft
  • Heating & Cooling
  • Heat type Hot Wtr Radiat
  • Exterior Home Features
  • Exterior walls Brick Veneer
  • Roof type Gambrel

Householders and Tenants for 54 Garland Rd, Newton MA

Possible residents contact details

Person Name Phone Number Additional Info
Arthur B Flink
617-244-****
CAROLE W FLINK 2015 REVOCABLE TRUST
Carole W Flink Age: 91
617-244-****
Residential status:
Homeowner
Job:
Production Occupations
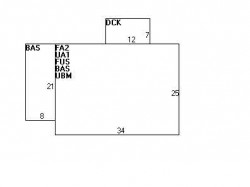
54 Garland Rd, Newton MA  02459-1710 plot plan 54 Garland Rd, Newton MA  02459-1710 floor plan 54 Garland Rd, Newton MA  02459-1710 aerial view

Cost estimate history

YearAssessment
2016 $751,400
2015 $702,200
2014 $669,400
2013 $669,400
2012 $669,400
2011 $669,400
2010 $683,100
2009 $697,000
2008 $697,000
2007 $732,400
2006$711,100
2005$677,200
2004$623,200
2003$556,400
2002$556,400
2001$474,500
2000$433,300
1999$394,300
1998$355,100
1997$325,800
1996$310,300
1995$291,700
1994$291,700
1993$291,700
1992$302,900

Where is 54 Garland Rd, Newton MA located on map?

Garland Rd Incidents registered in FEMA
(Federal Emergency Management Agency)

To date, we have no information about incidents registered in FEMA in 2025
29 Oct 2011 Hazardous condition, other
Property Use —
Residential street, road or residential driveway

Properties Nearby

Street AddressResidens/Landlords
 

FAQ about the house at 54 Garland Rd, Newton, MA


NOTICE: You may not use RadioAwards or the information it provides to make decisions about employment, credit, housing or any other purpose that would require Fair Credit Reporting Act (FCRA) compliance. RadioAwards is not a Consumer Reporting Agency (CRA) as defined by the FCRA and does not provide consumer reports.