53 Verndale Rd, Newton MA  02461-2113 exterior

53 Verndale Rd Newton, MA 02461 / 2113

Residence for Single Family

(UPDATED: 07/08/2025)
  • 3 Beds
  • 1 Baths
  • 2.998 square feet
Property Report

Information about property on 53 Verndale Rd, Newton MA, 02461-2113. Find out owner contacts, building history, price, neighborhood at Homemetry Address Directory.

Property Details

At 53 Verndale Road, Newton, MA there is a property, which was built in 1957 and is positioned down the street.

Facts

  • Built in 1957
  • Property use Single Family
  • Lot size 11,196 sqft
  • Effective area 2,142 sqft
  • Gross building area 2,998 sqft
  • Building type Residential
  • Rooms 7
  • Bedrooms 3
  • Bathrooms 2
  • Stories 1
  • Exterior condition Average
  • Trim Half Wall
  • Foundation type Concrete
  • Roof material Asphalt Shingl
  • Fuel type Oil
  • Air conditioning Central
  • Frontage 125 feet
  • Basement area 1,283 sqft
  • Finished basement area 427 sqft
  • Porch area 78 sqft
  • Deck area 112 sqft
  • Attached garage area 242 sqft
  • Heating & Cooling
  • Heat type Forced Air-Duc
  • Exterior Home Features
  • Exterior walls Wood Shingle
  • Roof type Gable

Features

  • Kitchen quality: Above Average

Householders and Tenants for 53 Verndale Rd, Newton MA

Possible residents contact details

Person Name Phone Number Additional Info
Abraham Milstein Age: 101
Residential status:
Homeowner
Job:
Homemaker
Barbara Milstein Age: 101
617-244-****
Jordan L Milstein Age: 74
617-244-****
Louis A Marcus Age: 62
617-244-****
Residential status:
Homeowner
Job:
Professional/Technical
Mark G Milstein Age: 67
617-244-****
Patricia E Jenks
Patricia E Marcus Age: 62
617-244-****
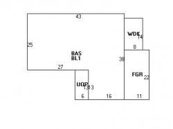
53 Verndale Rd, Newton MA  02461-2113 plot plan 53 Verndale Rd, Newton MA  02461-2113 floor plan 53 Verndale Rd, Newton MA  02461-2113 aerial view

Purchase History

DateEventPriceSourceAgents
07/02/2010 Sold $513,000 Public records

Cost estimate history

YearAssessment
2016 $603,900
2015 $564,400
2014 $539,500
2013 $539,500
2012 $539,500
2011 $486,900
2010 $496,800
2009 $506,900
2008 $506,900
2007 $515,200
2006$500,200
2005$476,400
2004$445,300
2003$397,600
2002$397,600
2001$334,600
2000$305,600
1999$278,100
1998$262,000
1997$251,900
1996$239,900
1995$206,900
1994$204,900
1993$215,700
1992$241,700

Where is 53 Verndale Rd, Newton MA located on map?

Properties Nearby

Street Address Residens/Landlords
Jill Kerner Schon
9 Verndale Rd, Newton, MA 02461-2113
Single Family
  • 3 beds
  • 2.5 baths
  • 3,254 sqft
  • Built in 1954
Joyce M Mcgovern, Seamus M Mcgovern
 

FAQ about the house at 53 Verndale Rd, Newton, MA


NOTICE: You may not use RadioAwards or the information it provides to make decisions about employment, credit, housing or any other purpose that would require Fair Credit Reporting Act (FCRA) compliance. RadioAwards is not a Consumer Reporting Agency (CRA) as defined by the FCRA and does not provide consumer reports.