52 Crehore Dr, Newton MA  02462-1120 exterior

52 Crehore Dr Newton, MA 02462 / 1120

Residence for Single Family

(UPDATED: 09/21/2025)
  • 4 Beds
  • 2 Baths
  • 2.844 square feet
Property Report

Information about property on 52 Crehore Dr, Newton MA, 02462-1120. Find out owner contacts, building history, price, neighborhood at Homemetry Address Directory.

Property Details

This property with approximately twenty-three hundred square feet of effective area on 0,21 acres was originally built in the forties.

Facts

  • Built in 1940
  • Property use Single Family
  • Lot size 9,039 sqft
  • Effective area 2,349 sqft
  • Gross building area 2,844 sqft
  • Building type Residential
  • Rooms 7
  • Bedrooms 4
  • Stories 2
  • Exterior condition Average
  • Trim None
  • Foundation type Conc Block
  • Roof material Asphalt Shingl
  • Fuel type Gas
  • Air conditioning Unit/AC
  • Frontage 66 feet
  • Basement area 660 sqft
  • Finished basement area 165 sqft
  • Shed area 150 sqft
  • Heating & Cooling
  • Heat type Hot Water
  • Exterior Home Features
  • Exterior walls Wood Shingle
  • Roof type Gable

Householders and Tenants for 52 Crehore Dr, Newton MA

Possible residents contact details

Person Name Phone Number Additional Info
Louis P Deangelis
Mary A Deangelis Age: 94
Residential status:
Homeowner
Sheryl L Deangelis Age: 57
Residential status:
Homeowner
Steven L Deangelis
Susan L Deangelis Age: 57
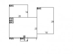
52 Crehore Dr, Newton MA  02462-1120 plot plan 52 Crehore Dr, Newton MA  02462-1120 floor plan 52 Crehore Dr, Newton MA  02462-1120 aerial view

Cost estimate history

YearAssessment
2016 $659,000
2015 $615,900
2014 $591,700
2013 $591,700
2012 $591,700
2011 $677,200
2010 $691,000
2009 $705,100
2008 $705,100
2007 $671,100
2006$651,600
2005$609,000
2004$572,400
2003$511,100
2002$511,100
2001$447,700
2000$408,900
1999$372,100
1998$345,200
1997$325,700
1996$310,200
1995$264,200
1994$251,600
1993$251,600
1992$263,900

Where is 52 Crehore Dr, Newton MA located on map?

Crehore Dr Incidents registered in FEMA
(Federal Emergency Management Agency)

To date, we have no information about incidents registered in FEMA in 2025
11 Jun 2003 Hazardous condition, other
Property Use —
1 or 2 family dwelling

Properties Nearby

Street AddressResidens/Landlords
 

FAQ about the house at 52 Crehore Dr, Newton, MA


NOTICE: You may not use RadioAwards or the information it provides to make decisions about employment, credit, housing or any other purpose that would require Fair Credit Reporting Act (FCRA) compliance. RadioAwards is not a Consumer Reporting Agency (CRA) as defined by the FCRA and does not provide consumer reports.