51 Fairmont Ave, Newton MA  02458-2505 exterior

51 Fairmont Ave Newton, MA 02458 / 2505

Residence for Single Family

(UPDATED: 09/15/2025)
  • 6 Beds
  • 6 Baths
  • 9.053 square feet
Property Report

Information about property on 51 Fairmont Ave, Newton MA, 02458-2505. Find out owner contacts, building history, price, neighborhood at Homemetry Address Directory.

Property Details

At 51 Fairmont Ave, Newton, MA stands a property, which was built in 2012.

Facts

  • Built in 2012
  • Property use Single Family
  • Lot size 14,040 sqft
  • Effective area 6,642 sqft
  • Gross building area 9,053 sqft
  • Building type Residential
  • Rooms 10
  • Bedrooms 5
  • Bathrooms 6
  • Stories 2,5
  • Exterior condition Excellent
  • Trim None
  • Foundation type Concrete
  • Roof material Asphalt Shingl
  • Fuel type Gas
  • Air conditioning Central
  • Frontage 90 feet
  • Basement area 2,290 sqft
  • Finished basement area 912 sqft
  • Porch area 257 sqft
  • Basement garages 2
  • Heating & Cooling
  • Heat type Forced Air-Duc
  • Exterior Home Features
  • Exterior walls Wood Shingle
  • Roof type Gable

Features

  • Kitchen quality: Good

Householders and Tenants for 51 Fairmont Ave, Newton MA

Possible residents contact details

Person Name Phone Number Additional Info
51 FAIRMONT AVENUE LLC
BRADY NAOMI H EST
ECKERT WILLIAM SCOTT
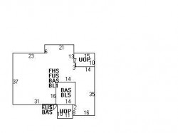
51 Fairmont Ave, Newton MA  02458-2505 plot plan 51 Fairmont Ave, Newton MA  02458-2505 floor plan 51 Fairmont Ave, Newton MA  02458-2505 aerial view

Purchase History

DateEventPriceSourceAgents
12/22/2010 Sold $799,000 Public records
06/27/2001 Sold $585,000 Public records

Cost estimate history

YearAssessment
2016 $2,588,100
2015 $2,418,800
2014 $2,283,100
2013 $1,573,200
2012 $702,300
2011 $584,900
2010 $596,800
2009 $609,000
2008 $609,000
2007 $599,800
2006$582,300
2005$554,600
2004$511,500
2003$456,700
2002$456,700
2001$372,300
2000$340,000
1999$309,400
1998$253,300
1997$235,600
1996$224,400
1995$226,500
1994$226,500
1993$226,500
1992$237,900

Where is 51 Fairmont Ave, Newton MA located on map?

Properties Nearby

Street AddressResidens/Landlords
 

FAQ about the house at 51 Fairmont Ave, Newton, MA


NOTICE: You may not use RadioAwards or the information it provides to make decisions about employment, credit, housing or any other purpose that would require Fair Credit Reporting Act (FCRA) compliance. RadioAwards is not a Consumer Reporting Agency (CRA) as defined by the FCRA and does not provide consumer reports.