5 Stony Brae Rd Newton, MA 02461 / 1707

Residence for Single Family

(UPDATED: 08/17/2025)
  • 3 Beds
  • 5 Baths
  • 2.822 square feet
Property Report

Information about property on 5 Stony Brae Rd, Newton MA, 02461-1707. Find out owner contacts, building history, price, neighborhood at Homemetry Address Directory.

Property Details

At 5 Stony Brae Road, Newton, MA placed a property, which was built in the forties.

Facts

  • Built in 1945
  • Property use Single Family
  • Lot size 12,640 sqft
  • Effective area 2,222 sqft
  • Gross building area 2,822 sqft
  • Building type Residential
  • Rooms 8
  • Bedrooms 3
  • Stories 2
  • Exterior condition Average
  • Trim None
  • Foundation type Concrete
  • Roof material Slate
  • Fuel type Oil
  • Air conditioning Central
  • Frontage 102 feet
  • Basement area 876 sqft
  • Finished basement area 200 sqft
  • Heating & Cooling
  • Heat type Forced Air-Duc
  • Exterior Home Features
  • Exterior walls Brick Veneer
  • Roof type Hip

Features

  • Kitchen quality: Above Average
  • Interior condition: Good

Householders and Tenants for 5 Stony Brae Rd, Newton MA

Possible residents contact details

Person Name Phone Number Additional Info
5 STONY BRAE ROAD REALTY TRUST
5 STONY BRAE ROAD REALTY TRUST /S TRS
Elizabeth D Weiler Age: 27
508-934-****
Residential status:
Homeowner
Greg Anderson
Helen W Samuels Age: 82
617-244-****
Miriam Conviser
Phoebe Anderson Age: 40
617-244-****
Sarah R Weiler Age: 62
508-934-****
Residential status:
Homeowner
Job:
Professional/Technical
Simon C Weiler Age: 29
508-934-****
Residential status:
Homeowner
Solly Weiler Age: 66
Residential status:
Homeowner
Job:
Professional/Technical
Thomas G Anderson Age: 75
617-244-****
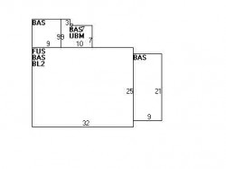
5 Stony Brae Rd, Newton MA  02461-1707 plot plan 5 Stony Brae Rd, Newton MA  02461-1707 floor plan 5 Stony Brae Rd, Newton MA  02461-1707 aerial view

Purchase History

DateEventPriceSourceAgents
06/23/2006 Sold $937,000 Public records

Cost estimate history

YearAssessment
2016 $911,300
2015 $851,700
2014 $809,300
2013 $809,300
2012 $809,300
2011 $806,300
2010 $822,800
2009 $839,600
2008 $839,600
2007 $700,600
2006$680,200
2005$647,800
2004$596,700
2003$532,800
2002$532,800
2001$481,400
2000$439,600
1999$346,500
1998$335,700
1997$316,700
1996$301,600
1995$304,100
1994$295,200
1993$295,200
1992$285,600

Where is 5 Stony Brae Rd, Newton MA located on map?

Stony Brae Rd Incidents registered in FEMA
(Federal Emergency Management Agency)

To date, we have no information about incidents registered in FEMA in 2025
04 Apr 2009 Power line down
Property Use —
1 or 2 family dwelling

Properties Nearby

Street AddressResidens/Landlords
 

FAQ about the house at 5 Stony Brae Rd, Newton, MA


NOTICE: You may not use RadioAwards or the information it provides to make decisions about employment, credit, housing or any other purpose that would require Fair Credit Reporting Act (FCRA) compliance. RadioAwards is not a Consumer Reporting Agency (CRA) as defined by the FCRA and does not provide consumer reports.