5 Fairfield St, Newton MA  02460-2107 exterior

5 Fairfield St Newton, MA 02460 / 2107

Residence for Single Family

(UPDATED: 08/10/2025)
  • 3 Beds
  • 1 Baths
  • 3.531 square feet
Property Report

Information about property on 5 Fairfield St, Newton MA, 02460-2107. Find out owner contacts, building history, price, neighborhood at Homemetry Address Directory.

Property Details

At 5 Fairfield Street, Newton, MA placed a property, which was built in the twenties.

Facts

  • Built in 1928
  • Property use Single Family
  • Lot size 8,946 sqft
  • Effective area 3,531 sqft
  • Building type Residential
  • Rooms 7
  • Bedrooms 3
  • Stories 2
  • Exterior condition Average
  • Trim None
  • Foundation type Concrete
  • Roof material Asphalt Shingl
  • Fuel type Gas
  • Frontage 110 feet
  • Basement area 1,240 sqft
  • Enclosed porch area 108 sqft
  • Basement garages 1
  • Heating & Cooling
  • Heat type Hot Wtr Radiat
  • Exterior Home Features
  • Exterior walls Brick/Masonry
  • Roof type Gable

Householders and Tenants for 5 Fairfield St, Newton MA

Possible residents contact details

Person Name Phone Number Additional Info
Ann M Oconnell Age: 71
Residential status:
Homeowner
Anne M Oconnell Age: 71
617-244-****
Annmarie M Oconnell Age: 71
617-244-****
Residential status:
Homeowner
Charlie Oconnell
Residential status:
Homeowner
Christopher O Connell
617-244-****
Residential status:
Homeowner
Corinne J Hicks Age: 111
617-244-****
James C Oconnell Age: 74
617-872-****
Residential status:
Homeowner
James O'connell
617-872-****
Residential status:
Homeowner
Job:
Building and Grounds Cleaning and Maintenance Occupations
Jas Oconnell Age: 74
Residential status:
Homeowner
Job:
Professional/Technical
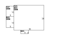
5 Fairfield St, Newton MA  02460-2107 plot plan 5 Fairfield St, Newton MA  02460-2107 floor plan 5 Fairfield St, Newton MA  02460-2107 aerial view

Cost estimate history

YearAssessment
2016 $725,600
2015 $678,100
2014 $648,700
2013 $648,700
2012 $648,700
2011 $647,900
2010 $661,100
2009 $674,600
2008 $674,600
2007 $698,500
2006$678,200
2005$645,900
2004$594,400
2003$530,700
2002$530,700
2001$442,500
2000$404,100
1999$367,700
1998$332,700
1997$309,500
1996$294,800
1995$280,100
1994$280,100
1993$280,100
1992$287,900

Where is 5 Fairfield St, Newton MA located on map?

Properties Nearby

Street AddressResidens/Landlords
6 Fairfield St, Newton, MA 02460-2108
Single Family
  • 4 beds
  • 3 baths
  • 4,384 sqft
  • Built in 1928
Eda Spielman, Spielman E DR Office - E Spielman MD
 

FAQ about the house at 5 Fairfield St, Newton, MA


NOTICE: You may not use RadioAwards or the information it provides to make decisions about employment, credit, housing or any other purpose that would require Fair Credit Reporting Act (FCRA) compliance. RadioAwards is not a Consumer Reporting Agency (CRA) as defined by the FCRA and does not provide consumer reports.