48 Gralynn Rd Newton, MA 02459 / 1341

Residence for Single Family

(UPDATED: 07/13/2025)
  • 3 Beds
  • 3 Baths
  • 6.048 square feet
Sold Mar 2023
$2,250,000
Property Report

Information about property on 48 Gralynn Rd, Newton MA, 02459-1341. Find out owner contacts, building history, price, neighborhood at Homemetry Address Directory.

Property Details

Erected in the thirties, this property has approximately fifty-four hundred square feet of effective area and sits on approximately 1/4 of acre.

Facts

  • Built in 1931
  • Property use Single Family
  • Lot size 10,315 sqft
  • Effective area 5,375 sqft
  • Gross building area 6,048 sqft
  • Building type Residential
  • Rooms 8
  • Bedrooms 3
  • Stories 2
  • Exterior condition Average
  • Trim None
  • Foundation type Concrete
  • Roof material Slate
  • Fuel type Oil
  • Air conditioning Central
  • Frontage 200 feet
  • Unfinished attic area 673 sqft
  • Basement area 1,556 sqft
  • Finished basement area 288 sqft
  • Porch area 154 sqft
  • Deck area 294 sqft
  • Heating & Cooling
  • Heat type Hot Wtr Radiat
  • Exterior Home Features
  • Exterior walls Brick Veneer
  • Roof type Hip

Features

  • Kitchen quality: Above Average
  • Interior condition: Good

Householders and Tenants for 48 Gralynn Rd, Newton MA

Possible residents contact details

Person Name Phone Number Additional Info
Allison M August Age: 65
Residential status:
Homeowner
Arlene Tr London
Baruch S Ticho Age: 66
Residential status:
Homeowner
Beatrice Sherter
Charlotte Tr Waks
DSBS REALTY TRUST
DSBS REALTY TRUST /S TRS
David Sherter
Jonathan Sherter
617-974-****
Residential status:
Homeowner
Job:
Food Preparation and Serving Related Occupations
Sidney L Tr Sherter
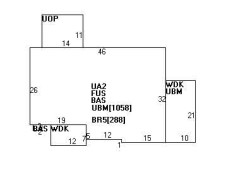
48 Gralynn Rd, Newton MA  02459-1341 plot plan 48 Gralynn Rd, Newton MA  02459-1341 floor plan 48 Gralynn Rd, Newton MA  02459-1341 aerial view

Purchase History

DateEventPriceSourceAgents
08/10/2005 Sold $1,580,000 Public records

Cost estimate history

YearAssessment
2016 $1,315,600
2015 $1,229,500
2014 $1,168,300
2013 $1,168,300
2012 $1,168,300
2011 $1,165,500
2010 $1,189,300
2009 $1,213,600
2008 $1,213,600
2007 $1,242,400
2006$1,125,300
2005$1,071,700
2004$1,001,400
2003$894,100
2002$894,100
2001$733,800
2000$670,100
1999$609,700
1998$523,300
1997$508,100
1996$483,900
1995$435,100
1994$435,100
1993$435,100
1992$459,500

Where is 48 Gralynn Rd, Newton MA located on map?

Market Activities

To date, we have no information about market activities in 2025
Mar 2023 Sold
48 Gralynn Rd
Price history :
  • Single Family
  • 3,140 sqft
  • 4 beds
  • 4 baths
Mar 2023 Sold
48 Gralynn Rd
Price history :
  • Single Family
  • 3,140 sqft
  • 4 beds
  • 4 baths

Gralynn Rd Incidents registered in FEMA
(Federal Emergency Management Agency)

To date, we have no information about incidents registered in FEMA in 2025
03 May 2010 Power line down
Property Use —
Residential street, road or residential driveway

Properties Nearby

Street AddressResidens/Landlords
15 Gralynn Rd, Newton, MA 02459-1310
Single Family
  • 4 beds
  • 3.5 baths
  • 5,970 sqft
  • Built in 1928
Avrum L Bluming, Martha Bluming
20 Gralynn Rd, Newton, MA 02459-1311
Single Family
  • 4 beds
  • 3.5 baths
  • 7,325 sqft
  • Built in 1930
APRIL REALTY TRUST, Elliot C Kirschner
21 Gralynn Rd, Newton, MA 02459-1310
Single Family
  • 5 beds
  • 3.5 baths
  • 5,671 sqft
  • Built in 1930
Ceri F Evans, Abhimanyu E Sarna
Matias Sacerdote, Leah Fish
 

FAQ about the house at 48 Gralynn Rd, Newton, MA


NOTICE: You may not use RadioAwards or the information it provides to make decisions about employment, credit, housing or any other purpose that would require Fair Credit Reporting Act (FCRA) compliance. RadioAwards is not a Consumer Reporting Agency (CRA) as defined by the FCRA and does not provide consumer reports.