47 Mosman St, Newton MA  02465-1303 exterior

47 Mosman St Newton, MA 02465 / 1303

Residence for Single Family

(UPDATED: 08/27/2025)
  • 3 Beds
  • 2 Baths
  • 8.120 square feet
Property Report

Information about property on 47 Mosman St, Newton MA, 02465-1303. Find out owner contacts, building history, price, neighborhood at Homemetry Address Directory.

Property Details

The residence is situated at 47 Mosman Street, Newton, MA.

Facts

  • Built in 1953
  • Property use Single Family
  • Lot size 8,120 sqft
  • Building type Residential
  • Rooms 8
  • Bedrooms 3
  • Bathrooms 2
  • Stories 1
  • Exterior condition Average
  • Trim Half Wall
  • Foundation type Slab
  • Roof material Asphalt Shingl
  • Fuel type Oil
  • Air conditioning Unit/AC
  • Frontage 76 feet
  • Shed area 108 sqft
  • Heating & Cooling
  • Heat type Hot Water
  • Exterior Home Features
  • Exterior walls Vinyl Siding
  • Roof type Gable

Householders and Tenants for 47 Mosman St, Newton MA

Possible residents contact details

Person Name Phone Number Additional Info
Concepcio Ullman Age: 92
Residential status:
Homeowner
Job:
Production Occupations
Concepcion A Ullman Age: 92
617-969-****
Edward Ullman
Residential status:
Homeowner
Job:
Production Occupations
Herbert A Ullman Age: 97
617-969-****
Herbert Mosman
Robert Ullman
Residential status:
Homeowner
Job:
Production Occupations
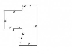
47 Mosman St, Newton MA  02465-1303 plot plan 47 Mosman St, Newton MA  02465-1303 floor plan 47 Mosman St, Newton MA  02465-1303 aerial view

Cost estimate history

YearAssessment
2016 $528,900
2015 $494,300
2014 $466,300
2013 $466,300
2012 $466,300
2011 $465,600
2010 $475,100
2009 $484,800
2008 $484,800
2007 $508,500
2006$493,700
2005$470,200
2004$423,200
2003$377,900
2002$377,900
2001$318,200
2000$290,600
1999$264,400
1998$236,100
1997$222,700
1996$212,100
1995$191,900
1994$191,900
1993$191,900
1992$204,100

Where is 47 Mosman St, Newton MA located on map?

Properties Nearby

Street AddressResidens/Landlords
 

FAQ about the house at 47 Mosman St, Newton, MA


NOTICE: You may not use RadioAwards or the information it provides to make decisions about employment, credit, housing or any other purpose that would require Fair Credit Reporting Act (FCRA) compliance. RadioAwards is not a Consumer Reporting Agency (CRA) as defined by the FCRA and does not provide consumer reports.