46 Mosman St, Newton MA  02465-1303 exterior

46 Mosman St Newton, MA 02465 / 1303

Residence for Single Family

(UPDATED: 07/25/2025)
  • 3 Beds
  • 2 Baths
  • 8.910 square feet
Property Report

Information about property on 46 Mosman St, Newton MA, 02465-1303. Find out owner contacts, building history, price, neighborhood at Homemetry Address Directory.

Property Details

At 46 Mosman Street, Newton, MA there is a single-family possession.

Facts

  • Built in 1953
  • Property use Single Family
  • Lot size 8,910 sqft
  • Building type Residential
  • Rooms 8
  • Bedrooms 3
  • Bathrooms 2
  • Stories 1
  • Exterior condition Average
  • Trim Half Wall
  • Foundation type Slab
  • Roof material Asphalt Shingl
  • Fuel type Oil
  • Air conditioning Central
  • Frontage 84 feet
  • Shed area 80 sqft
  • Heating & Cooling
  • Heat type Hot Water
  • Exterior Home Features
  • Exterior walls Wood Shingle
  • Roof type Gable

Features

  • Kitchen quality: Above Average
  • Bath quality: Below Average

Householders and Tenants for 46 Mosman St, Newton MA

Possible residents contact details

Person Name Phone Number Additional Info
Bruce D Norian
C Valente Age: 105
617-332-****
Constance B Valente Age: 105
617-332-****
Residential status:
Homeowner
Deborah A Valente
617-332-****
Diane M Mccarthy
Eric Szeto Age: 65
617-244-****
Residential status:
Homeowner
Job:
Professional/Technical
Joseph R Valente
617-332-****
Residential status:
Homeowner
Job:
Production Occupations
Kawo Szeto
781-642-****
Residential status:
Homeowner
Job:
Production Occupations
Mary Valente
617-332-****
SZETO WAI LIN
Sandra Norian
VALENTE-GILDEA DEBORAH &AL
VALENTE-GILDEN DEBORAH
VALENTE CONSTANCE B LIFE EST
Wai L Szeto Age: 64
617-244-****
Residential status:
Homeowner
Job:
Professional/Technical

Businesses

Organization Phone Number Additional Info
Thomasyoung Associates, Inc
Industry:
Nonclassifiable Establishments
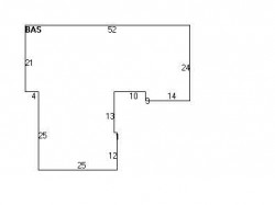
46 Mosman St, Newton MA  02465-1303 plot plan 46 Mosman St, Newton MA  02465-1303 floor plan 46 Mosman St, Newton MA  02465-1303 aerial view

Purchase History

DateEventPriceSourceAgents
02/29/2008 Sold $525,000 Public records
09/01/2006 Sold $400,000 Public records

Cost estimate history

YearAssessment
2016 $553,900
2015 $517,700
2014 $486,600
2013 $486,600
2012 $486,600
2011 $509,100
2010 $519,500
2009 $530,100
2008 $394,200
2007 $432,800
2006$480,300
2005$457,400
2004$413,700
2003$369,400
2002$369,400
2001$307,500
2000$280,800
1999$285,500
1998$233,400
1997$220,200
1996$209,700
1995$196,000
1994$196,000
1993$196,000
1992$208,500

Where is 46 Mosman St, Newton MA located on map?

Properties Nearby

Street AddressResidens/Landlords
 

FAQ about the house at 46 Mosman St, Newton, MA


NOTICE: You may not use RadioAwards or the information it provides to make decisions about employment, credit, housing or any other purpose that would require Fair Credit Reporting Act (FCRA) compliance. RadioAwards is not a Consumer Reporting Agency (CRA) as defined by the FCRA and does not provide consumer reports.