45 Barbara Rd Newton, MA 02465 / 1123

Residence for Single Family

(UPDATED: 07/16/2025)
  • 3 Beds
  • 2 Baths
  • 3.136 square feet
Sold Sep 2017
$780,000
Property Report

Information about property on 45 Barbara Rd, Newton MA, 02465-1123. Find out owner contacts, building history, price, neighborhood at Homemetry Address Directory.

Property Details

As is shown in our records this property is based at 45 Barbara Rd, Newton, MA.

Facts

  • Built in 1945
  • Property use Single Family
  • Lot size 7,104 sqft
  • Effective area 2,296 sqft
  • Gross building area 3,136 sqft
  • Building type Residential
  • Rooms 7
  • Bedrooms 3
  • Bathrooms 2
  • Stories 1,5
  • Exterior condition Average
  • Trim Full Wall
  • Foundation type Concrete
  • Roof material Asphalt Shingl
  • Fuel type Gas
  • Air conditioning None
  • Fireplaces 1
  • Frontage 105 feet
  • Basement area 960 sqft
  • Finished basement area 420 sqft
  • Deck area 36 sqft
  • Attached garage area 220 sqft
  • Heating & Cooling
  • Heat type Hot Wtr Radiat
  • Exterior Home Features
  • Exterior walls Wood Shingle
  • Roof type Gable

Features

  • Interior condition: Good

Householders and Tenants for 45 Barbara Rd, Newton MA

Possible residents contact details

Person Name Phone Number Additional Info
BESLY MICHAEL JOHN
BESLY MICHAEL JOHN &UX
Bonnie S Besly
617-332-****
Bonnie S Blumenthal Age: 67
617-332-****
Cuiyan Xin
Douglas H Macfarlane
Irene O Valente Age: 61
617-332-****
Residential status:
Homeowner
Job:
Precision Production Occupations
James G Valente Age: 64
617-332-****
Residential status:
Homeowner
Job:
Precision Production Occupations
Jas Valente
617-928-****
Jim Valente Age: 64
Michael J Besly Age: 59
617-332-****
Mike Besly Age: 59
617-332-****
Residential status:
Homeowner
Ronald F Farrar
Shuyu Ren
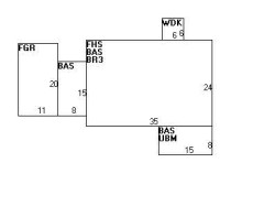
45 Barbara Rd, Newton MA  02465-1123 plot plan 45 Barbara Rd, Newton MA  02465-1123 floor plan 45 Barbara Rd, Newton MA  02465-1123 aerial view

Purchase History

DateEventPriceSourceAgents
08/01/2003 Sold $516,500 Public records
08/31/1998 Sold $292,500 Public records
12/29/1997 Sold $200,000 Public records

PURCHASE HISTORY 45 Barbara Rd, Newton MA

12/29/199708/01/2003Date$0$100k$200k$300k$400k$500k$600kPrices

Cost estimate history

YearAssessment
2016 $547,000
2015 $511,200
2014 $483,900
2013 $483,900
2012 $483,900
2011 $498,900
2010 $509,100
2009 $519,500
2008 $556,100
2007 $539,000
2006$523,300
2005$498,400
2004$432,900
2003$386,500
2002$386,500
2001$327,700
2000$299,300
1999$272,300
1998$196,900
1997$186,600
1996$177,700
1995$165,800
1994$165,800
1993$165,800
1992$171,400

Where is 45 Barbara Rd, Newton MA located on map?

Market Activities

To date, we have no information about market activities in 2025
Sep 2017 Sold
45 Barbara Rd
Price history :
  • 1,500
  • 3 beds
  • 2 baths

View more

Properties Nearby

Street Address Residens/Landlords
Scott Cooper
 

FAQ about the house at 45 Barbara Rd, Newton, MA


NOTICE: You may not use RadioAwards or the information it provides to make decisions about employment, credit, housing or any other purpose that would require Fair Credit Reporting Act (FCRA) compliance. RadioAwards is not a Consumer Reporting Agency (CRA) as defined by the FCRA and does not provide consumer reports.