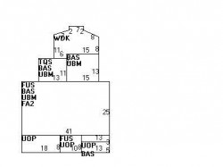
Cost estimate history
| Year | Assessment | ||
|---|---|---|---|
| 2016 | $1,005,900 | ||
| 2015 | $940,100 | ||
| 2014 | $903,200 | ||
| 2013 | $903,200 | ||
| 2012 | $903,200 | ||
| 2011 | $963,000 | ||
| 2010 | $982,700 | ||
| 2009 | $1,002,800 | ||
| 2008 | $1,002,800 | ||
| 2007 | $1,035,600 | ||
| 2006 | $1,005,400 | ||
| 2005 | $957,500 | ||
| 2004 | $897,700 | ||
| 2003 | $801,500 | ||
| 2002 | $801,500 | ||
| 2001 | $617,300 | ||
| 2000 | $563,700 | ||
| 1999 | $512,900 | ||
| 1998 | $453,200 | ||
| 1997 | $453,200 | ||
| 1996 | $431,600 | ||
| 1995 | $386,600 | ||
| 1994 | $368,200 | ||
| 1993 | $368,200 | ||
| 1992 | $353,800 |
Woodward St Fire Incident History
To date, we have no information about fire incidents in 2025
10 Jul 2010
Grass fire
Property Use —
Vacant lot
Area of Origin —
Open area - outside; included are farmland, field
First Ignition —
Light vegetation - not crop, including grass
01 Jan 2009
Building fires
Property Use —
1 or 2 family dwelling
Area of Origin —
Storage area, other
First Ignition —
Furniture, utensils, other
Heat Source —
Hot ember or ash
24 Sep 2008
Building fires
Property Use —
1 or 2 family dwelling
Area of Origin —
Common room, den, family room, living room, lounge
First Ignition —
Electrical wire, cable insulation
Heat Source —
Heat source: other
16 Oct 1999
Structure fire, other (conversion only)
Property Use —
1 or 2 family dwelling
Area of Origin —
Cooking area, kitchen
First Ignition —
Bedding; blanket, sheet, comforter
Heat Source —
Radiated, conducted heat from operating equipment
Woodward St Incidents registered in FEMA
(Federal Emergency Management Agency)
To date, we have no information about incidents registered in FEMA in 2025
07 Nov 2015
Authorized controlled burning
Property Use —
1 or 2 family dwelling
16 Aug 2015
Electrical wiring/equipment problem, other
Property Use —
Residential street, road or residential driveway
25 Jun 2011
Arcing, shorted electrical equipment
Property Use —
Residential street, road or residential driveway
06 Feb 2011
Gasoline or other flammable liquid spill
Property Use —
Vehicle parking area
Properties Nearby
| Street Address | Residens/Landlords |
|---|


